Design Guide

98 bertazzoni.com
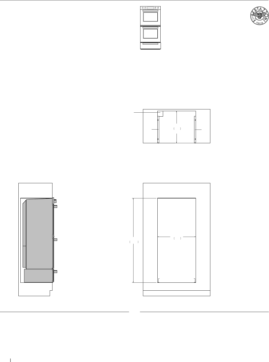
30” Convection Double Oven +
30” Warming Drawer
Proud installation
SIDE VIEW
FRONT VIEW
TOP VIEW
(a) Spacers – Included with appliance
28 1/2"
724
62 7/8"
1597
23 7/8"
606
DEPTH
a
a
a
a
4" x 4"
(102 x 102)
CUT OUT SLOT
FOR POWER CORD
(a) Spacers - Parts of standard equipment
MULTIPLE INSTALLATIONS - 30” OVENS WALL CONFIGURATIONS
PROF30FDEXT
PROF30FDEXV
MAST30FDEXT
MAST30FDEXV
PROF30WDEX
MAST30WDEX
For electrical and gas supply please see single installation
requirements. Placement within the opening may require
additional cabinet depth.