Design Guide

37bertazzoni.com
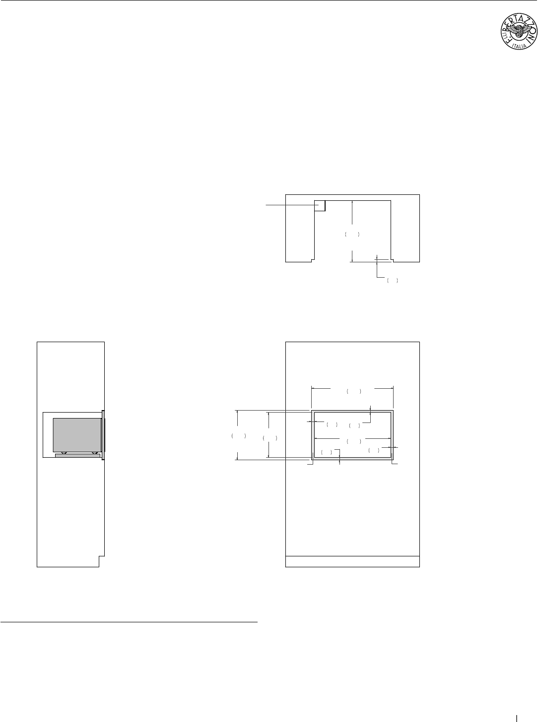
30” Microwave Oven
Flush installation
SPECIALTY OVENS
SIDE VIEW
FRONT VIEW
TOP VIEW
23"
585
FLUSH INSET
DEPTH
28 1/2"
724
4" x 4"
(102 x 102)
CUT OUT SLOT
FOR POWER CORD
18 1/2"
470
FLUSH INSET
HEIGHT
30 1/2"
776
FLUSH INSET
WIDTH
1"
26
3/4"
20
1"
25
a
a
1"
26
7/8"
22
16 7/8"
428
(a) Visible Area - Match finish to outside cabinet panels