Design Guide

24 bertazzoni.com
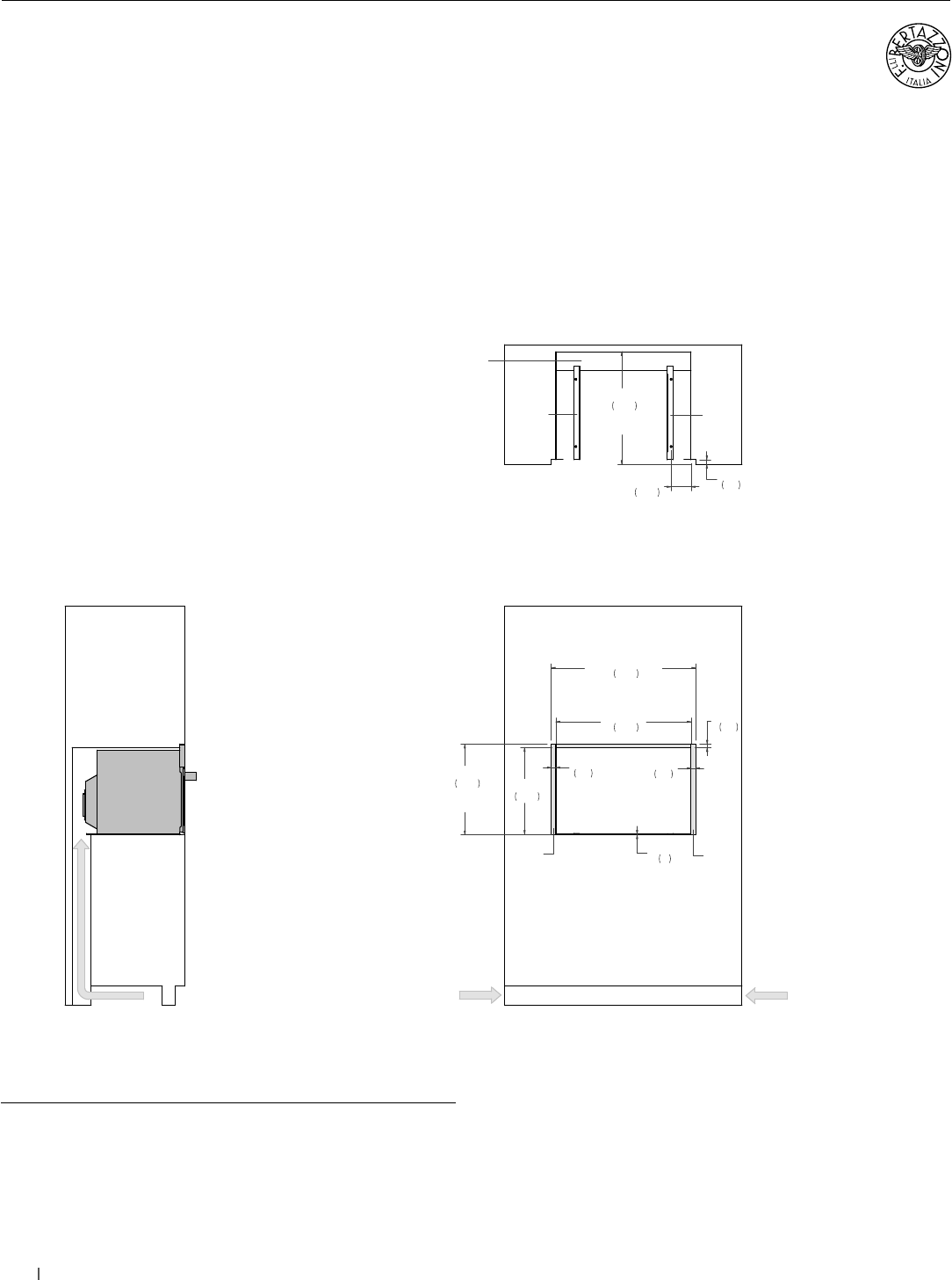
30” Convection Speed Ovens
Flush installation
SIDE VIEW
FRONT VIEW
TOP VIEW
(a) Spacers – Included with appliance
(b) Visible Area – Match finish to outside cabinet panels
AIR INTAKE
28 1/2"
724
30 1/2"
774
FLUSH INSET
WIDTH
18 1/4"
464
19 1/8"
485
FLUSH INSET
HEIGHT
1"
25
1"
25
3/4"
18
1/8"
3
23 3/4"
603
FLUSH INSET
DEPTH
1"
25
a
a
b
b
AIR INTAKE
4" x 15"
(102 x 380)
AIR INTAKE
4" x 15"
(102 x 380)
4" x 28 1/2"
(102 x 724)
AIR INTAKE
4 1/4"
107
SPECIALTY OVENS
(a) Spacers - Included with appliance
(b) Visible Area - Match finish to outside cabinet panels