Design Guide

14 bertazzoni.com
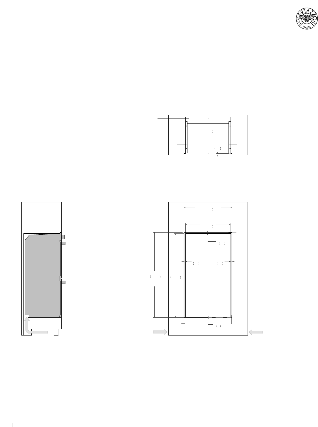
30” Electric Convection Double Ovens
Flush installation vented
WALL OVENS
SIDE VIEW
FRONT VIEW
TOP VIEW
(a) Spacers – Included with appliance
(b) Visible Area – Match finish to outside cabinet panels
4" x 28 1/2"
(102 x 724)
AIR INTAKE
a
a
28 1/2"
724
30 1/2"
774
FLUSH INSET
WIDTH
53"
1346
53 7/8"
1367
FLUSH INSET
HEIGHT
1"
25
1"
25
1/8"
3
3/4"
18
b
b
b
23 7/8"
606
FLUSH INSET
DEPTH
1"
25
AIR INTAKE
AIR INTAKE
4" x 15"
(102 x 380)
AIR INTAKE
4" x 15"
(102 x 380)
(a) Spacers - Included with appliance
(b) Visible Area - Match finish to outside cabinet panels