Design Guide

134 bertazzoni.com
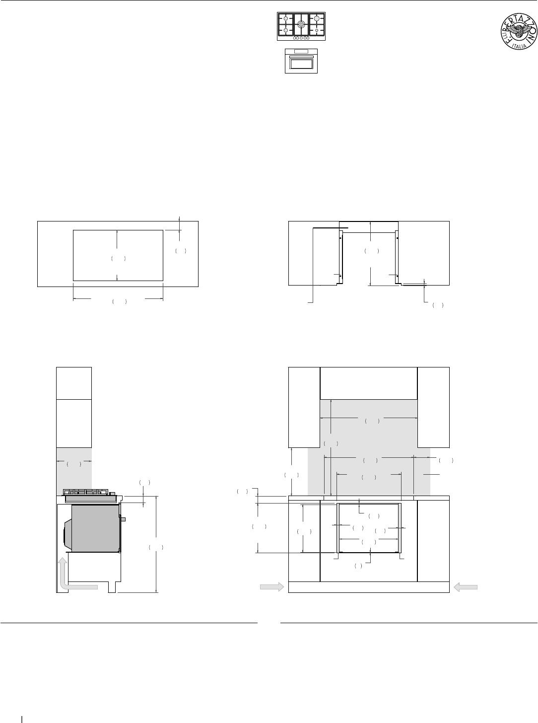
24” Specialty Oven +
36” Cooktop XV
Flush installation
SIDE VIEW
FRONT VIEW
(a) Spacers – Included with appliance
(b) Visible Area – Match finish to outside cabinet panels
(c) Combustible material cannot be installed within shaded area
TOP VIEW – OVEN DETAIL TOP VIEW – COOKTOP DETAIL
AIR INTAKE
a
bb
a
18"
457
36"
915
36 3/8"
925
6"
152
2 1/2"
62
36"
914
13"
330
17 7/8"
455
24"
610
FLUSH INSET
WIDTH
18 1/2"
470
FLUSH INSET
HEIGHT
1"
25
1"
25
1/8"
3
1/2"
12
22"
560
23 3/4"
603
FLUSH INSET
DEPTH
c
2 5/8"
68
33 1/2"
850
3/4"
19
4" x 22"
(102 x 560)
AIR INTAKE
AIR INTAKE
4" x 15"
(102 x 380)
AIR INTAKE
4" x 15"
(102 x 380)
33 1/2"
850
COOKTOP
CUT-OUT WIDTH
18 7/8"
480
COOKTOP
COUT-OUT DEPTH
3 3/8"
85
(a) Spacers - Included with appliance
(b) Visible Area - Match finish to outside cabinet panels
(c) Combustible material cannot be installed within shaded area
MULTIPLE INSTALLATIONS - 24” OVEN AND COOKTOP UNDERCOUNTER CONFIGURATIONS
PROF24SOEX PROF365CTXV
For electrical and gas supply please see single installation
requirements. Placement within the opening may require
additional cabinet depth.