Design Guide

132 bertazzoni.com
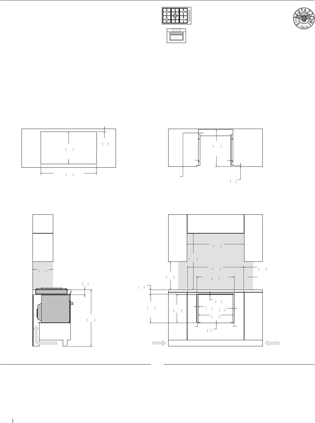
24” Specialty Oven +
36” Drop-in Cooktop
Flush installation
SIDE VIEW
FRONT VIEW
(a) Spacers – Included with appliance
(b) Visible Area – Match finish to outside cabinet panels
(c) Combustible material cannot be installed within shaded area
TOP VIEW – OVEN DETAIL TOP VIEW – COOKTOP DETAIL
AIR INTAKE
a
bb
a
18"
457
36"
915
36 3/8"
925
6"
152
3 1/8"
80
36"
914
13"
330
17 7/8"
455
24"
610
FLUSH INSET
WIDTH
18 1/2"
470
FLUSH INSET
HEIGHT
1"
25
1"
25
1/8"
3
1/2"
12
22"
560
23 3/4"
603
FLUSH INSET
DEPTH
c
2 5/8"
68
35 5/8"
905
4" x 22"
(102 x 560)
AIR INTAKE
AIR INTAKE
4" x 15"
(102 x 380)
AIR INTAKE
4" x 15"
(102 x 380)
35 5/8"
905
COOKTOP
CUT-OUT WIDTH
20 1/2"
520
COOKTOP
CUT-OUT DEPTH
1 3/4"
45
3/4"
19
(a) Spacers - Included with appliance
(b) Visible Area - Match finish to outside cabinet panels
(c) Combustible material cannot be installed within shaded area
MULTIPLE INSTALLATIONS - 24” OVEN AND COOKTOP UNDERCOUNTER CONFIGURATIONS
PROF24SOEXV
PROF366QBXT
PROF365QBXT
PROF365QXE
MAST366QBXT
MAST365QBXT
MAST365QXE
For electrical and gas supply please see single installation
requirements. Placement within the opening may require
additional cabinet depth.