Design Guide

107bertazzoni.com
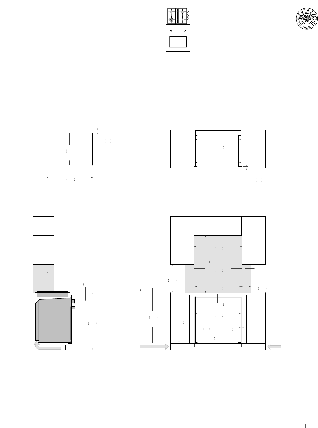
30” Convection Oven +
30” Drop-in Cooktop
Flush installation vented
SIDE VIEW
FRONT VIEW
(a) Spacers – Included with appliance
(b) Visible Area – Match finish to outside cabinet panels
(c) Combustible material cannot be installed within shaded area
TOP VIEW – OVEN DETAIL TOP VIEW – COOKTOP DETAIL
AIR INTAKE
a
b
b
a
18"
457
36"
915
30"
762
6"
152
3 1/8"
80
36"
914
13"
330
28 3/8"
720
30 1/2"
774
FLUSH INSET
WIDTH
29 1/8"
741
FLUSH INSET
HEIGHT
1"
25
1"
25
1/8"
3
3/4"
18
28 1/2"
724
23 3/4"
603
FLUSH INSET
DEPTH
c
2 1/2"
62
28 7/8"
735
4" x 28 1/2"
(102 x 724)
AIR INTAKE
AIR INTAKE
3" x 16"
(77 x 406)
AIR INTAKE
3" x 16"
(77 x 406)
1"
25
28 7/8"
735
COOKTOP
CUT-OUT WIDTH
20 1/2"
520
COOKTOP
CUT-OUT DEPTH
1 3/4"
45
(a) Spacers - Included with appliance
(b) Visible Area - Match finish to outside cabinet panels
(c) Combustible material cannot be installed within shaded area
MULTIPLE INSTALLATIONS - 30” OVEN AND COOKTOP UNDERCOUNTER CONFIGURATIONS
PRO304QBXT
PROF304QXE
MAST304QBXT
MAST304QXE
PROF30FSEXT
PROF30FSEXV
MAST30FSEXT
MAST30FSEXV
For electrical and gas supply please see single installation
requirements. Placement within the opening may require
additional cabinet depth.