Design Guide

41bertazzoni.com
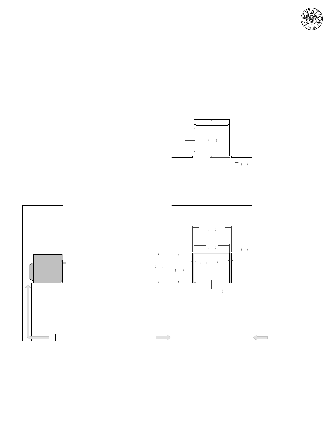
24” Convection Speed Ovens
Flush installation
SIDE VIEW
FRONT VIEW
TOP VIEW
(a) Spacers Included with appliance
(b) Visible Area Match finish to outside cabinet panels
AIR INTAKE
22"
560
24"
610
FLUSH INSET
WIDTH
17 7/8"
455
18 1/2"
470
FLUSH INSET
HEIGHT
1"
25
1"
25
1/2"
12
1/8"
3
23 3/4"
603
FLUSH INSET
DEPTH
3/4"
20
a
a
b b
AIR INTAKE
4" x 15"
(102 x 380)
AIR INTAKE
4" x 15"
(102 x 380)
4" x 22"
(102 x 560)
AIR INTAKE
SPECIALTY OVENS
(a) Spacers - Included with appliance
(b) Visible Area - Match finish to outside cabinet panels