Design Guide

114 bertazzoni.com
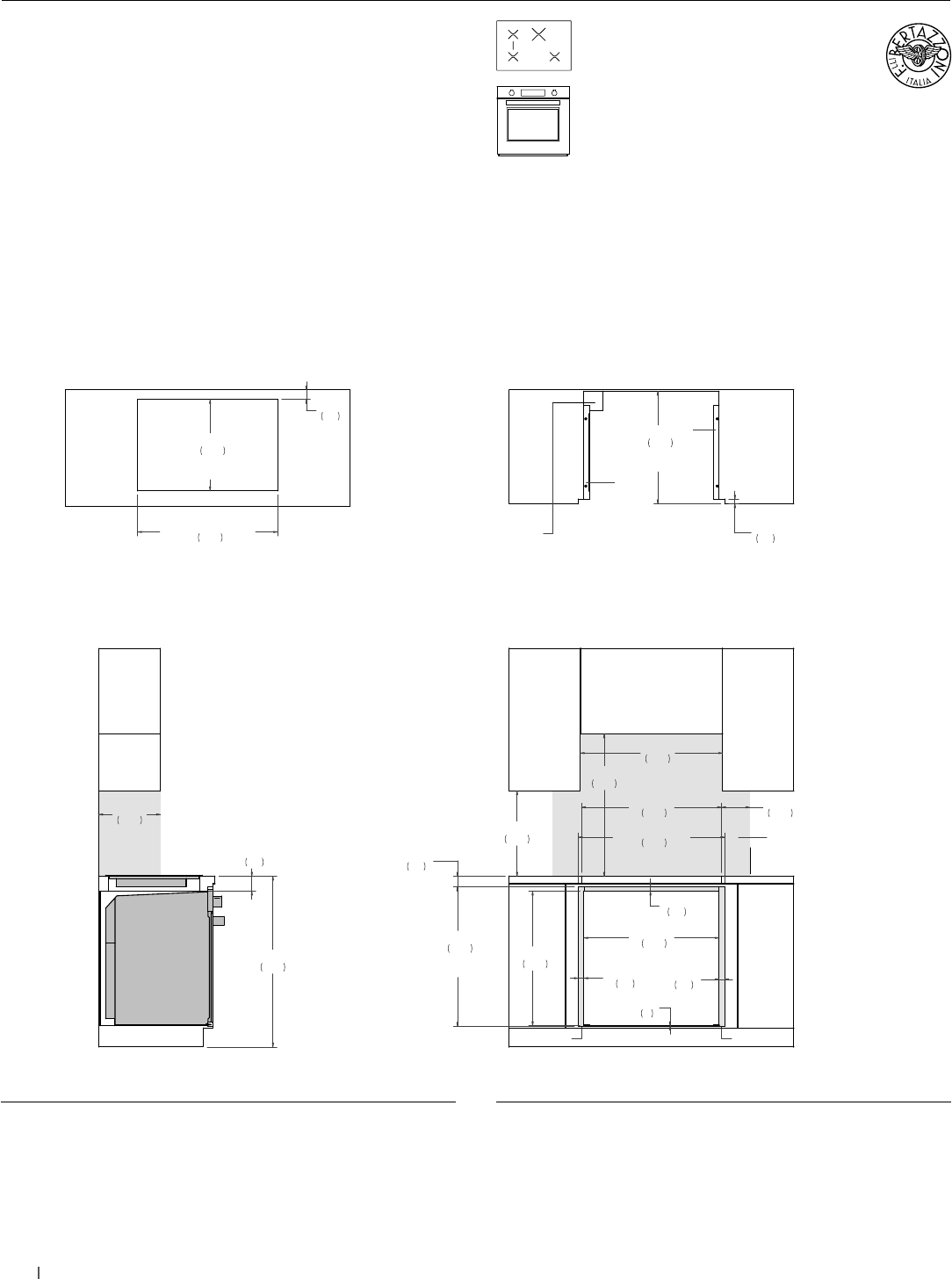
30” Convection Oven +
30” Induction Cooktop
Flush installation non vented
SIDE VIEW
FRONT VIEW
(a) Spacers – Included with appliance
(b) Visible Area – Match finish to outside cabinet panels
(c) Combustible material cannot be installed within shaded area
TOP VIEW – OVEN DETAIL TOP VIEW – COOKTOP DETAIL
a
b
b
a
18"
457
30"
763
30"
762
3 1/8"
80
36"
914
13"
330
28 3/8"
720
30 7/8"
784
FLUSH INSET
WIDTH
29 3/8"
746
FLUSH INSET
HEIGHT
1 1/8"
30
1 1/8"
30
1/8"
3
7/8"
23
28 1/2"
724
23 3/4"
603
FLUSH INSET
DEPTH
c
2 1/4"
57
29 1/2"
750
4" x 4"
(102 x 102)
CUT OUT SLOT
FOR POWER CORD
6"
152
19 1/4"
490
COOKTOP
CUT-OUT DEPTH
29 1/2"
750
COOKTOP
CUT-OUT WIDTH
2"
51
1"
25
(a) Spacers - Included with appliance
(b) Visible Area - Match finish to outside cabinet panels
(c) Combustible material cannot be installed within shaded area
MULTIPLE INSTALLATIONS - 30” OVEN AND COOKTOP UNDERCOUNTER CONFIGURATIONS
P304IAE PROF30FSEXT
PROF30FSEXV
MAST30FSEXT
MAST30FSEXV
For electrical and gas supply please see single installation
requirements. Placement within the opening may require
additional cabinet depth.










