Design Guide

96 bertazzoni.com
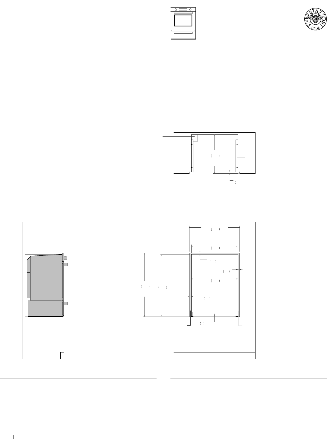
30” Convection Single Oven +
30” Warming Drawer
Flush installation non vented
SIDE VIEW
FRONT VIEW
TOP VIEW
(a) Spacers – Included with appliance
(b) Visible Area – Match finish to outside cabinet panels
28 1/2"
724
28 1/2"
724
30 7/8"
784
FLUSH INSET
WIDTH
39 1/4"
997
FLUSH INSET
HEIGHT
38 1/4"
971
1 1/8"
30
1 1/8"
30
1/8"
3
23 7/8"
606
FLUSH INSET
DEPTH
a
b
b
a
a
a
7/8"
23
4" x 4"
(102 x 102)
CUT OUT SLOT
FOR POWER CORD
1"
25
(a) Spacers - Included with appliance
(b) Visible Area - Match finish to outside cabinet panels
MULTIPLE INSTALLATIONS - 30” OVENS WALL CONFIGURATIONS
PROF30FSEXT
PROF30FSEXV
MAST30FSEXT
MAST30FSEXV
PROF30WDEX
MAST30WDEX
For electrical and gas supply please see single installation
requirements. Placement within the opening may require
additional cabinet depth.










