Design Guide

9bertazzoni.com
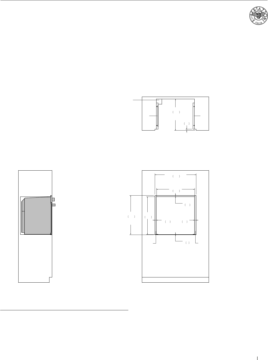
30” Electric Convection Single Ovens
Flush installation non vented
WALL OVENS
SIDE VIEW
FRONT VIEW
TOP VIEW
(a) Spacers – Included with appliance
(b) Visible Area – Match finish to outside cabinet panels
4" x 4"
(102 x 102)
CUT OUT SLOT
FOR POWER CORD
28 1/2"
724
30 7/8"
784
FLUSH INSET
WIDTH
28 3/8"
720
29 3/8"
746
FLUSH INSET
HEIGHT
1 1/8"
30
1 1/8"
30
1/8"
3
7/8"
23
b
b
23 5/8"
600
FLUSH INSET
DEPTH
1"
25
a a
(a) Spacers - Included with appliance
(b) Visible Area - Match finish to outside cabinet panels










