Design Guide

50 bertazzoni.com
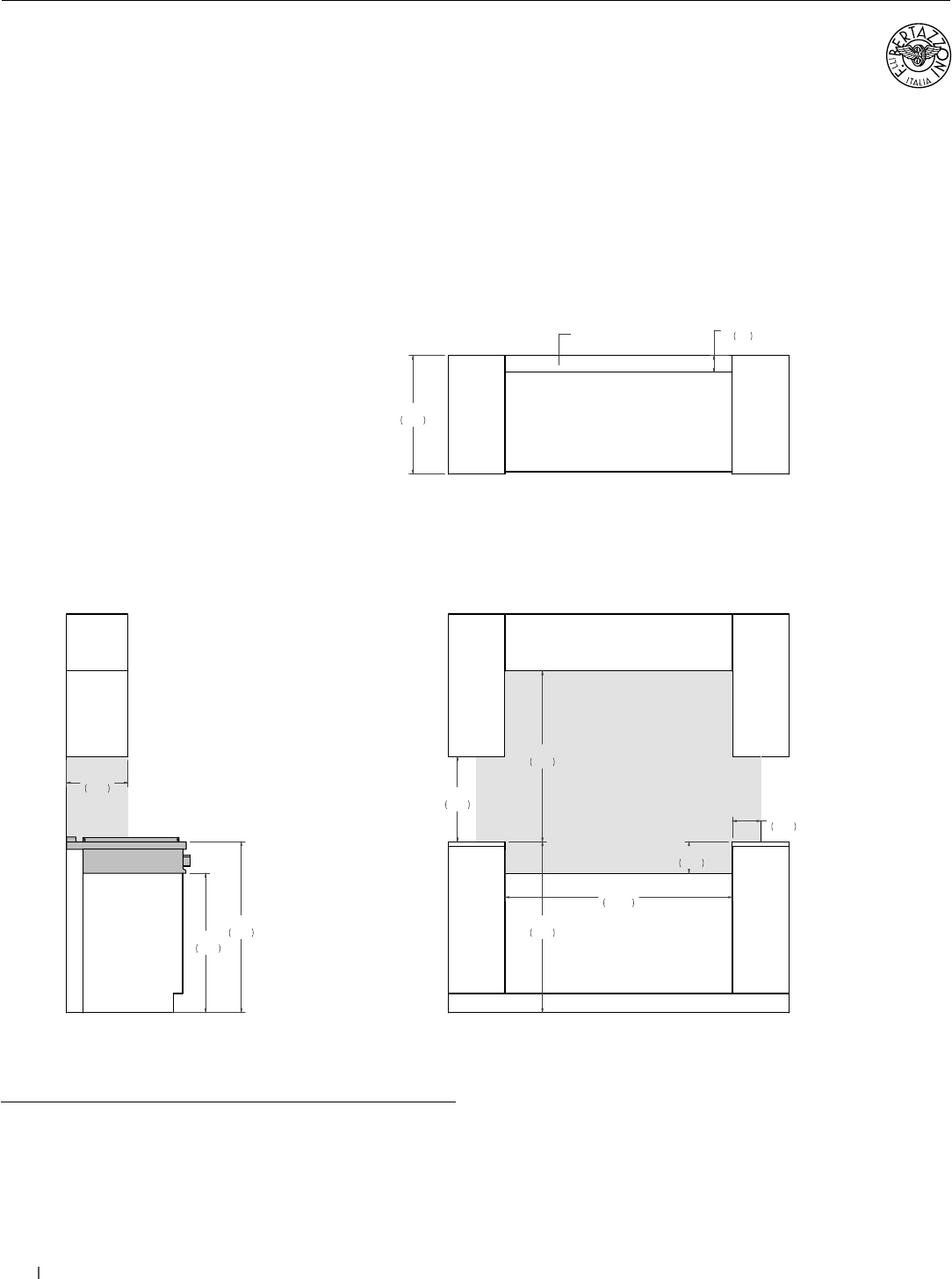
SIDE VIEW
FRONT VIEW
TOP VIEW
Combustible material cannot be installed within shaded area.
18"
457
36"
915
13"
330
6"
152
48"
1218
6 5/8"
168
25"
635
29 3/8"
746
3 1/2"
90
36"
914
36"
914
AREA FOR ELECTRIC
AND GAS CONNECTION
48” Rangetops
Installation
Combustible material cannot be located within shaded area.
GAS RANGETOPS & COOKTOPS










