Design Guide
Manuals
Brands
Bertazzoni Manuals
Appliances
Bertazzoni 30" Master Series Stainless Steel Drop-In Gas Cooktop
41
42
43
44
45
46
47
48
49
50
48
bertazzoni.com
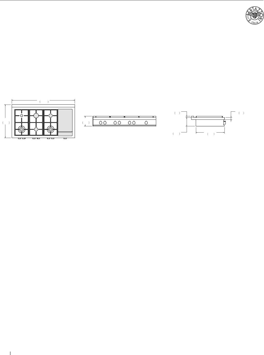
48” Rangetops
Dimensions
GAS RANGETOPS & COOKTOPS
TOP VIEW
FRONT
V
IEW
SIDE
VIEW
25 1/4"
641
47 7/8"
1216
6 5/8"
168
1"
26
7 5/8"
194
21 5/8"
550
1 5/8"
40
PROF486GRTBXT
MAST486GRTBXT
1
...
...
46
47
48
49
50
...
...
150