Design Guide

41bertazzoni.com
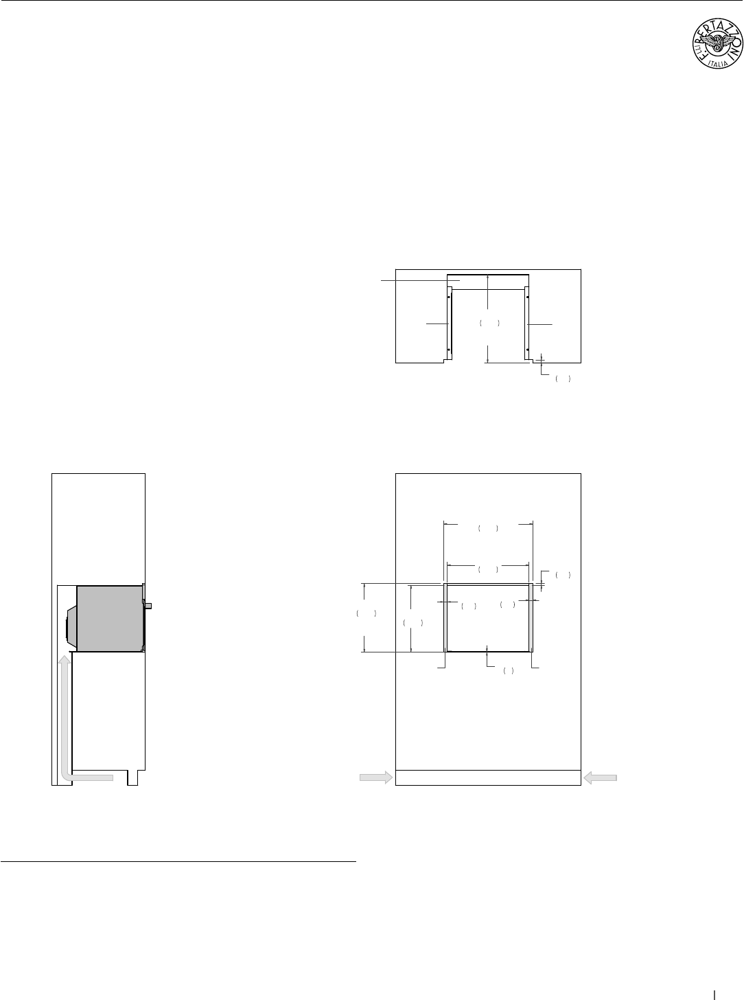
24” Convection Speed Ovens
Flush installation
SIDE VIEW
FRONT VIEW
TOP VIEW
(a) Spacers – Included with appliance
(b) Visible Area – Match finish to outside cabinet panels
AIR INTAKE
22"
560
24"
610
FLUSH INSET
WIDTH
17 7/8"
455
18 1/2"
470
FLUSH INSET
HEIGHT
1"
25
1"
25
1/2"
12
1/8"
3
23 3/4"
603
FLUSH INSET
DEPTH
3/4"
20
a
a
b b
AIR INTAKE
4" x 15"
(102 x 380)
AIR INTAKE
4" x 15"
(102 x 380)
4" x 22"
(102 x 560)
AIR INTAKE
SPECIALTY OVENS
(a) Spacers - Included with appliance
(b) Visible Area - Match finish to outside cabinet panels










