Design Guide

137bertazzoni.com
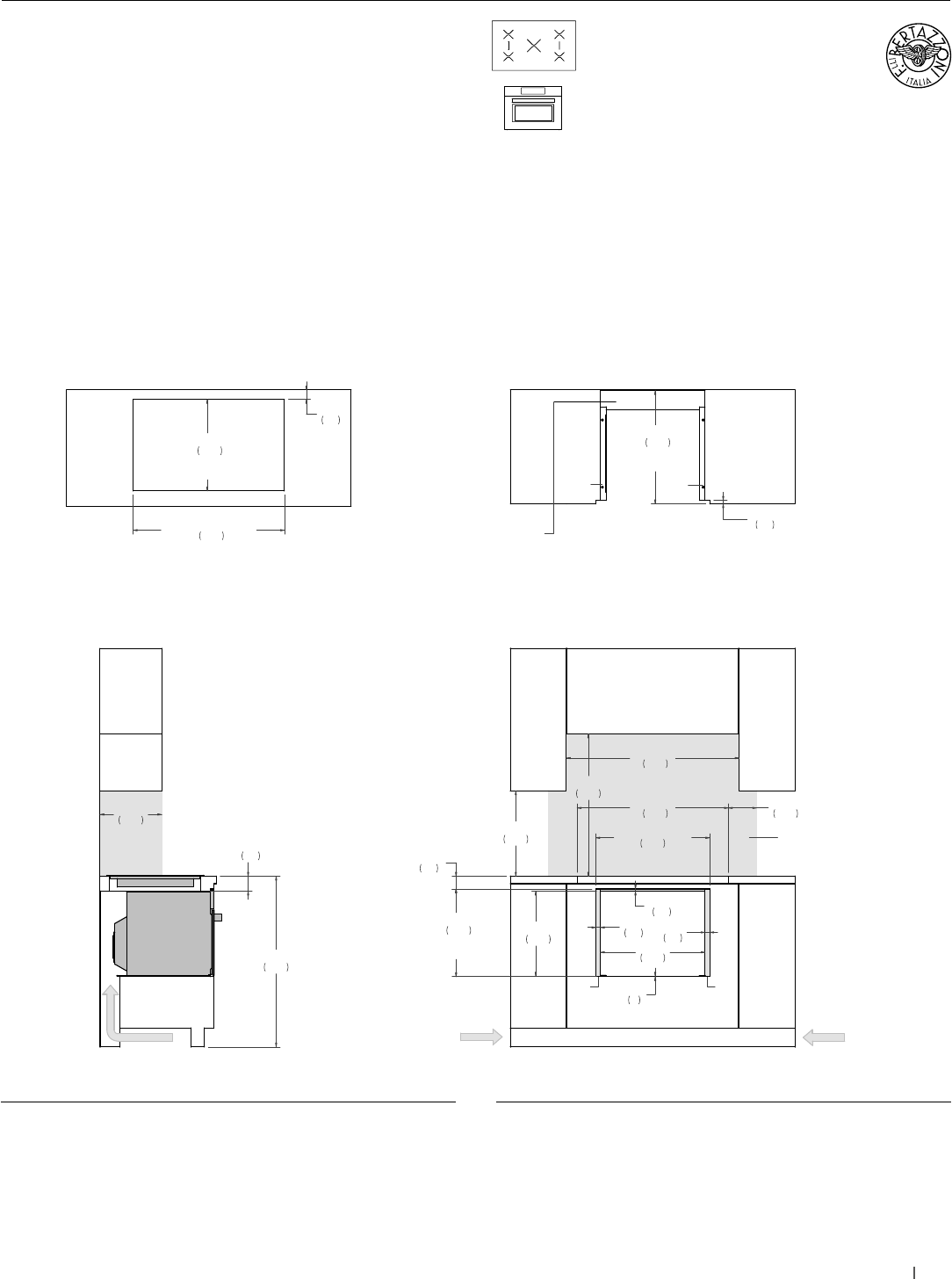
24” Specialty Oven +
36” Induction Cooktop
Flush installation
SIDE VIEW
FRONT VIEW
TOP VIEW – OVEN DETAIL TOP VIEW – COOKTOP DETAIL
(a) Spacers – Included with appliance
(b) Visible Area – Match finish to outside cabinet panels
(c) Combustible material cannot be installed within shaded area
AIR INTAKE
a
bb
a
18"
457
30"
763
36 3/8"
925
6"
152
3 1/8"
80
36"
914
13"
330
17 7/8"
455
24"
610
FLUSH INSET
WIDTH
18 1/2"
470
FLUSH INSET
HEIGHT
1"
25
1"
25
1/8"
3
1/2"
12
22"
560
23 7/8"
606
FLUSH INSET
DEPTH
c
2 5/8"
68
31 7/8"
810
31 7/8"
810
COOKTOP
CUT-OUT WIDTH
19 1/4"
490
COOKTOP
CUT-OUT DEPTH
2"
51
AIR INTAKE
4" x 15"
(102 x 380)
AIR INTAKE
4" x 15"
(102 x 380)
4" x 22"
(102 x 560)
AIR INTAKE
3/4"
19
(a) Spacers - Included with appliance
(b) Visible Area - Match finish to outside cabinet panels
(c) Combustible material cannot be installed within shaded area
MULTIPLE INSTALLATIONS - 24” OVEN AND COOKTOP UNDERCOUNTER CONFIGURATIONS
PROF24SOEX P365IAE
For electrical and gas supply please see single installation
requirements. Placement within the opening may require
additional cabinet depth.










