Design Guide

122bertazzoni.com
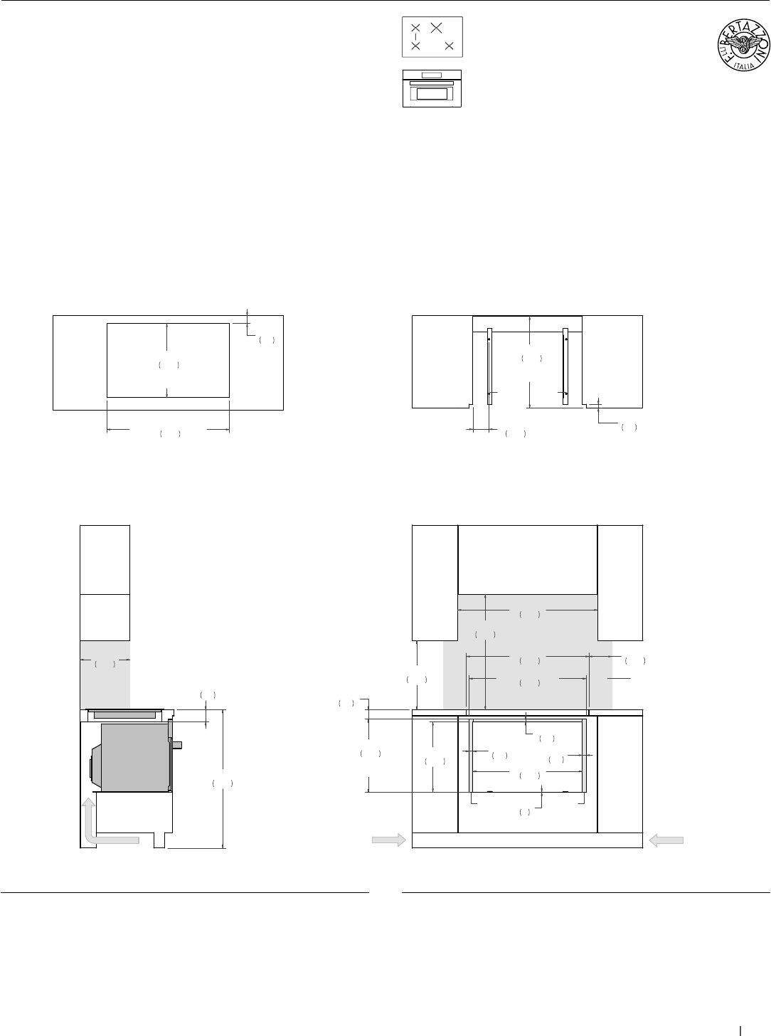
30” Specialty Oven +
30” Induction Cooktop
Flush installation
SIDE VIEW
FRONT VIEW
(a) Spacers – Included with appliance
(b) Visible Area – Match finish to outside cabinet panels
(c) Combustible material cannot be installed within shaded area
TOP VIEW – OVEN DETAIL TOP VIEW – COOKTOP DETAIL
AIR INTAKE
a
bb
18"
457
30"
763
36 3/8"
925
6"
152
3 1/8"
80
36"
914
13"
330
18 1/4"
464
30 1/2"
774
FLUSH INSET
WIDTH
19 1/8"
485
FLUSH INSET
HEIGHT
1"
25
1"
25
1/8"
3
3/4"
18
28 1/2"
724
23 7/8"
606
FLUSH INSET
DEPTH
a
4 1/4"
107
c
2 1/2"
62
31 7/8"
810
1"
25
AIR INTAKE
4" x 15"
(102 x 380)
AIR INTAKE
4" x 15"
(102 x 380)
31 7/8"
810
COOKTOP
CUT-OUT WIDTH
19 1/4"
490
COOKTOP
CUT-OUT DEPTH
2"
51
(a) Spacers - Included with appliance
(b) Visible Area - Match finish to outside cabinet panels
(c) Combustible material cannot be installed within shaded area
MULTIPLE INSTALLATIONS - 30” OVEN AND COOKTOP UNDERCOUNTER CONFIGURATIONS
PROF30SOEX
PROF30CSEX
MAST30SOEX
MAST30CSEX
P304IAE
For electrical and gas supply please see single installation
requirements. Placement within the opening may require
additional cabinet depth.










