Design Guide

111bertazzoni.com
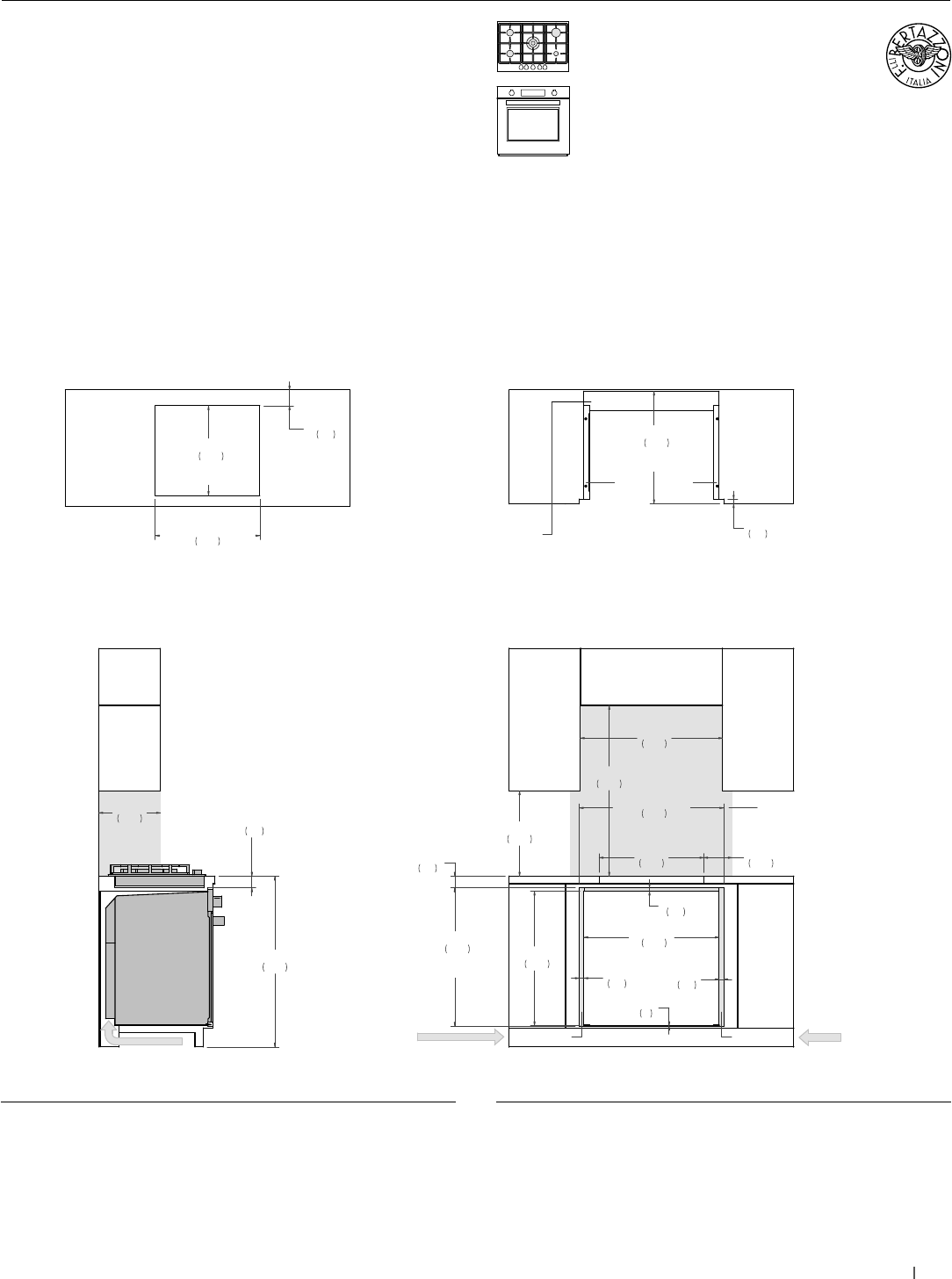
30” Convection Oven +
30” Cooktop XV
Flush installation vented
SIDE VIEW
FRONT VIEW
(a) Spacers – Included with appliance
(b) Visible Area – Match finish to outside cabinet panels
(c) Combustible material cannot be installed within shaded area
TOP VIEW – OVEN DETAIL TOP VIEW – COOKTOP DETAIL
AIR INTAKE
a
a
18"
457
36"
915
30"
762
6"
152
36"
914
13"
330
28 3/8"
720
30 1/2"
774
FLUSH INSET
WIDTH
29 1/8"
741
FLUSH INSET
HEIGHT
1"
25
1"
25
1/8"
3
3/4"
18
28 1/2"
724
23 3/4"
603
FLUSH INSET
DEPTH
c
2 1/2"
62
22"
560
b b
1"
25
4" x 28 1/2"
(102 x 724)
AIR INTAKE
AIR INTAKE
3" x 16"
(77 x 406)
AIR INTAKE
3" x 16"
(77 x 406)
2 1/2"
62
18 7/8"
480
COOKTOP
CUT-OUT DEPTH
22"
560
COOKTOP
CUT-OUT WIDTH
3 3/8"
85
(a) Spacers - Included with appliance
(b) Visible Area - Match finish to outside cabinet panels
(c) Combustible material cannot be installed within shaded area
MULTIPLE INSTALLATIONS - 30” OVEN AND COOKTOP UNDERCOUNTER CONFIGURATIONS
PROF305CTXV PROF30FSEXT
PROF30FSEXV
MAST30FSEXT
MAST30FSEXV
For electrical and gas supply please see single installation
requirements. Placement within the opening may require
additional cabinet depth.










