Design Guide

100 bertazzoni.com
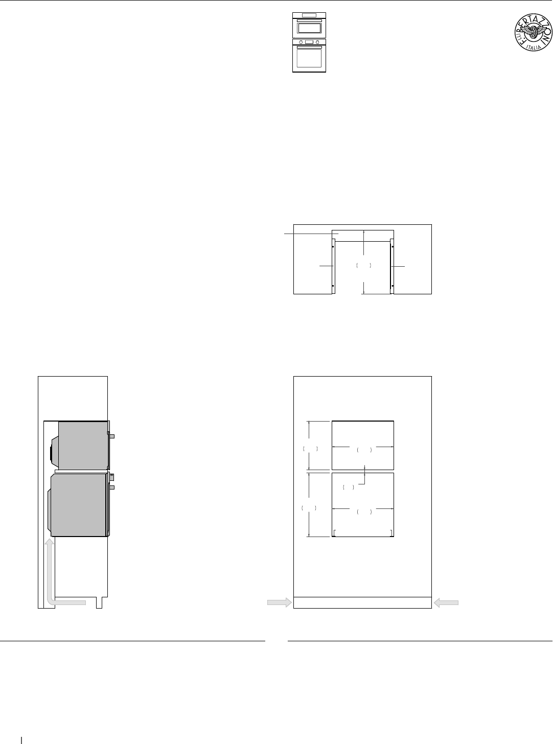
24” Specialty Oven +
24” Convection Single Oven
Proud installation
SIDE VIEW
FRONT VIEW
TOP VIEW
(a) Spacers – Included with appliance
AIR INTAKE
a
a
a
a
17 3/4"
451
22 3/8"
568
23"
585
FLUSH INSET
DEPTH
23"
585
1 1/8"
28
4" x 22"
(102 x 560)
AIR INTAKE
AIR INTAKE
4" x 15"
(102 x 380)
AIR INTAKE
4" x 15"
(102 x 380)
22 3/8"
568
(a) Spacers - Included with appliance
MULTIPLE INSTALLATIONS - 24” OVENS WALL CONFIGURATIONS
PROF24SOEX
PROF24FSEXV
For electrical and gas supply please see single installation
requirements. Placement within the opening may require
additional cabinet depth.










