Installation Instructions

pagina 7
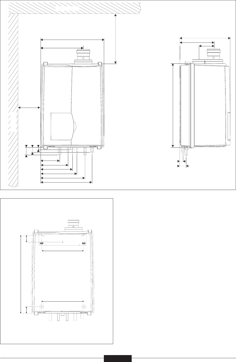
maatvoering voor- en zijaanzicht figuur 1
wandwand
wandwand
wand
plafondplafond
plafondplafond
plafond
minimaalminimaal
minimaalminimaal
minimaal
250 mm250 mm
250 mm250 mm
250 mm
minimaal
10 mm
CC
CC
C
EE
EE
E
PP
PP
P
QQ
QQ
Q
BB
BB
B
NN
NN
N
KK
KK
K
OO
OO
O
GG
GG
G
HH
HH
H
II
II
I
JJ
JJ
J
FF
FF
F
MM
MM
M
LL
LL
L
DD
DD
D
AA
AA
A
maatvoering bevestigings- en steunpunten (in mm) figuur 2
5454
5454
54
332332
332332
332
619,5619,5
619,5619,5
619,5
337337
337337
337
steunpuntensteunpunten
steunpuntensteunpunten
steunpunten
5252
5252
52
R
Aan de achterzijde van de Benraad ketel bevinden zich
twee punten die als steunpunten kunnen dienen in een
situatie waar de ketel op een frame opgehangen wordt
(zie figuur 2). De maatvoering van de boorgaten voor de
ketelbevestiging.










