User's Manual

8
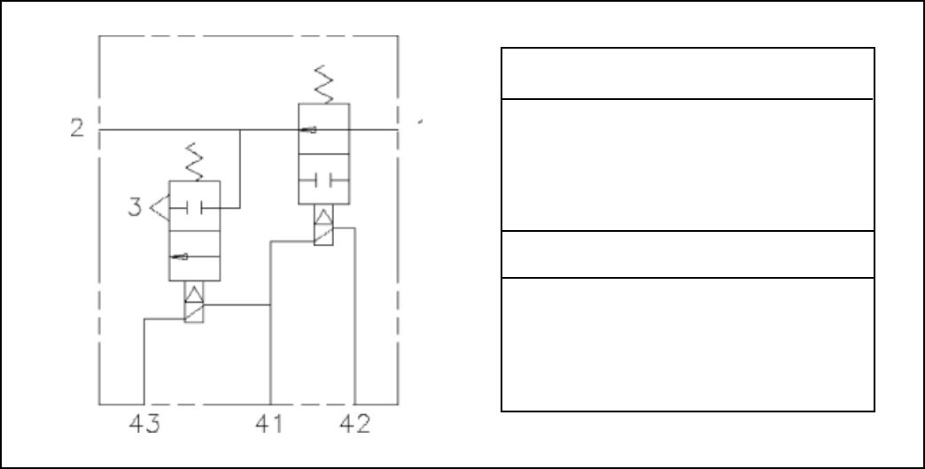
FIGURA 11: SIMBOLOS DIN DE LOS MODULADORES M-32
™
Y M-32QR
™
Designación del orificio
Suministro 1
Entrega 2
Escape 3
Control Eléctrico
Fuente 41
Retención 42
Escape 43
9. Componentes con roscas estropeadas o partes
dañadas deben ser cambiadas en vez de
reparadas. No intente reparaciones que requieran
maquinado o soldadura, a menos que
específicamente sea establecido y aprobado por
el fabricante del vehículo y del componente.
10. Antes de regresar el vehículo al servicio,
asegúrese de que todos los componentes y
sistemas sean restablecidos a su condición
apropiada de operación.
11. Para vehículos con control de tracción antibloqueo
(ATC), la función ATC debe ser inhabilitada ( la
lámpara indicadora del ATC debe de estar
encendida) antes de ejecutar cualquier
mantenimiento al vehículo, donde una o más
ruedas del eje de mando estén levantadas de la
tierra y en movimiento.
REMOCION DEL MODULADOR
1. Localice el modulador que será reemplazado y limpie
el exterior.
2. Identifique y marque o rotule todas las tuberías de aire
y sus respectivas conexiones en la válvula para facilitar
la comodidad de la instalación.
3. Desconecte las tuberías de aire y el conectador eléctrico.
4. Quite el modulador del vehículo.
5. Quite todos los accesorios de la tubería de aire y
tapones. Estos accesorios serán reusados en el
reemplazo del modulador.
INSTALACION DEL MODULADOR
1. Instale todos los accesorios de la tubería de aire y
tapones, asegurándose de que ciertos materiales
sellantes de la rosca no entren a la válvula.
2. Instale el ensamblaje de la válvula en el vehículo.
3. Reconecte ambas tuberías de aire a la válvula usando
la identificación hecha durante la REMOCION DE LA
VALVULA, paso 5.
4. Reconecte el conectador eléctrico al modulador.
5. Después de instalar la válvula, pruebe todas las
conexiones de aire para ver si hay excesiva fuga y apriete
si es necesario.









