User Manual
Table Of Contents

Installation
2Installation
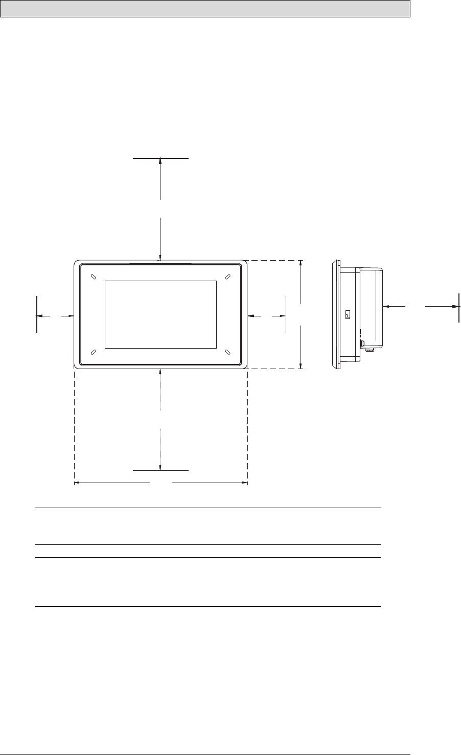
2.1 Platzanforderungen
• Maximale Dicke der Einbauplatte: 5,5 mm
• Platzbedarf in Millimetern für den Einbau des Bedienpanels:
100
100
106.8
100
170.4
50
[mm]
50
Hinweis:
DieAbmessungenaufderZeichnungsindnichtproportional.
Vorsicht:
DieÖffnungenim GehäusesindfürdieLuftzirkulationbestimm t unddürfennicht
abgedecktwerden.
BeijerElectronics, MADE180B
11










