User guide
Table Of Contents

Additional Installation Tips
10.7 CableandBusTerminationRS485
• Use shielded and twisted pair cable. The pair capacitance may not exceed 52.5
pF/m and area at least 0.25 mm
2
(AWG 24), if you want to use the maximum
transfer distance and maximum transfer speed.
• 0 V, the reference voltage for communication should be included in
the cabling. With t wo-way communication use two pairs; one pair for
communication and one pair for 0 V.
• The shield must be grounded at one end. The other end is usually grounded,
but with longer distan ces or when there is a difference in the ground potential,
theshieldshouldbeconnectedtothegroundvia0.1uF/250Vplastic
capacitor to prevent ground current in the braided shield. A number of
manufacturers recommend that the shield be grounded at each node. Various
manufacturers have different systems for bus termination. The RS485
standard does not describe how the “Fail Safe” function would be carried out,
justthatthesystemshouldbeabletohandletheerror.
Depending on the recipients’ design, the bus wires may be on the same level or
require pull-up or pull-down to ensure that no faulty signals are detected when the
bus is in resting mode (all transmitters are disconnected).
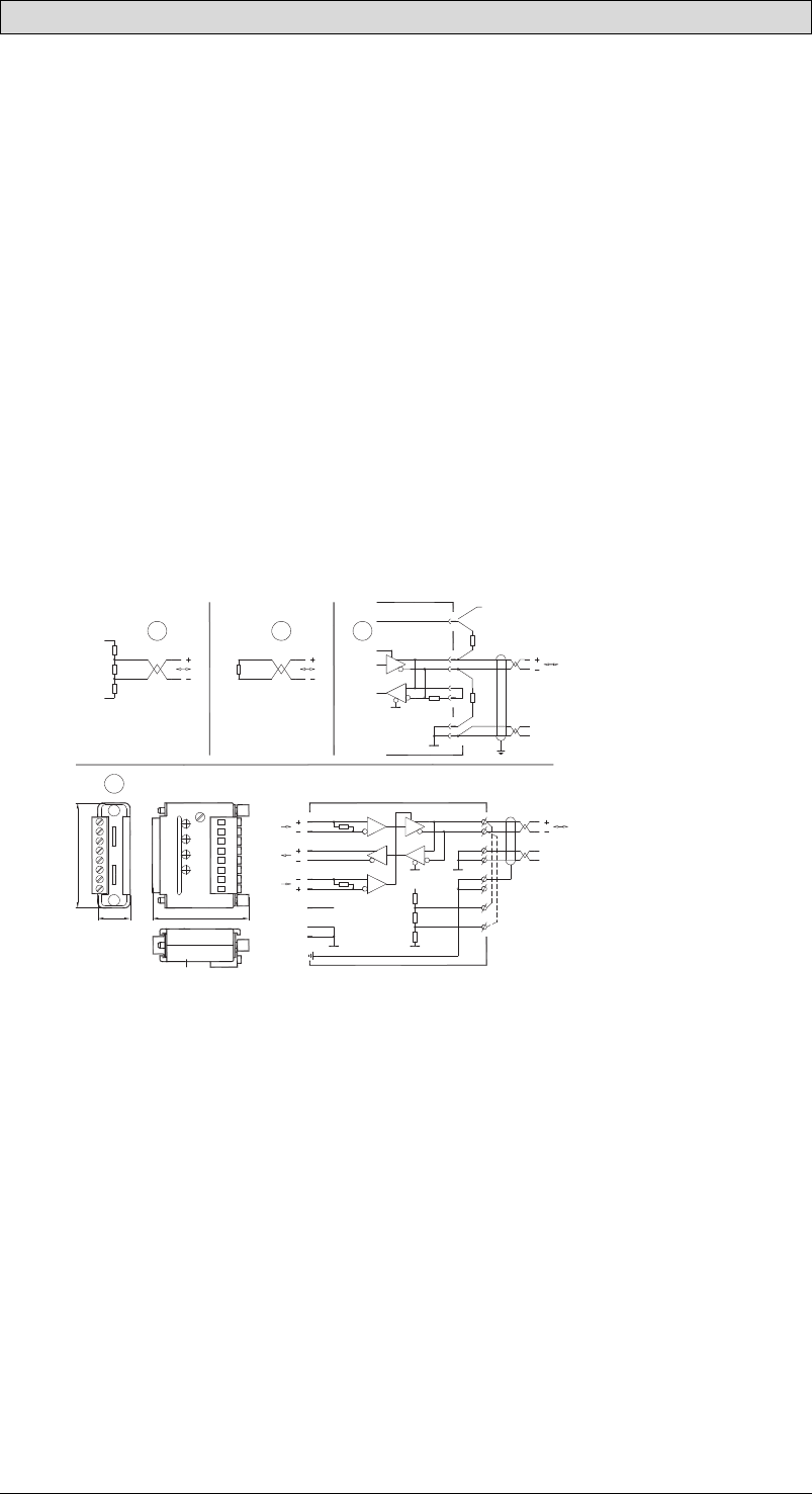
1 23
4
+5 V
0 V
1 K
1 K
120 ohm 120 ohm
120 ohm
+5 V
+5 V
0 V
0 V
0 V
0 V
0 V
0 V
1 K
1 K
1 K
1 K
VCC
VCC
(120 ohm)
Inside operator panel
Operator
panel
RS422
CAB8CAB8 Bus
RS485
Shield
Bus termination
5358
2
14
15
6
19
7
8
1
2
3
4
5
6
7
8
2
15
3
16
17
4
14
8
7
55
50
17
1 2 3 4 5 6 7 8
Some (older) operator panels had pull-up and pull-down resistance except for
the actual bus termination at 120 ohm, similar to Westermo and Profibus. See 1
in drawing above.
Newer panels have another type of recipient, so-called built-in “Fail Safe”, where
simple bus termination resistance is sufficient. See 2 in drawing above.
If other nodes on the RS485 network require pull-up and pull-down and the
operator panel is at one end of the loop, one of the following procedures can be
carried out:
• Connect two 1k/0.25 W resistors in the 25-pole D-sub contact. See 3 in
drawing above. Set jumper pins 6-19.
• Use CAB8. It offers the option of bus termination with pull-up/-down. It
isalsoeasytoconnectthebuscableviathescrewterminalblock. See4in
drawing above.
BeijerElectronics, MAEN004
37










