User guide
Table Of Contents

Additional Installation Tips
10 AdditionalInstallationTips
When experiencing communication problems in for example noisy environments
or when operating clo se to temperature limits, the following recommendations
are to b e noticed.
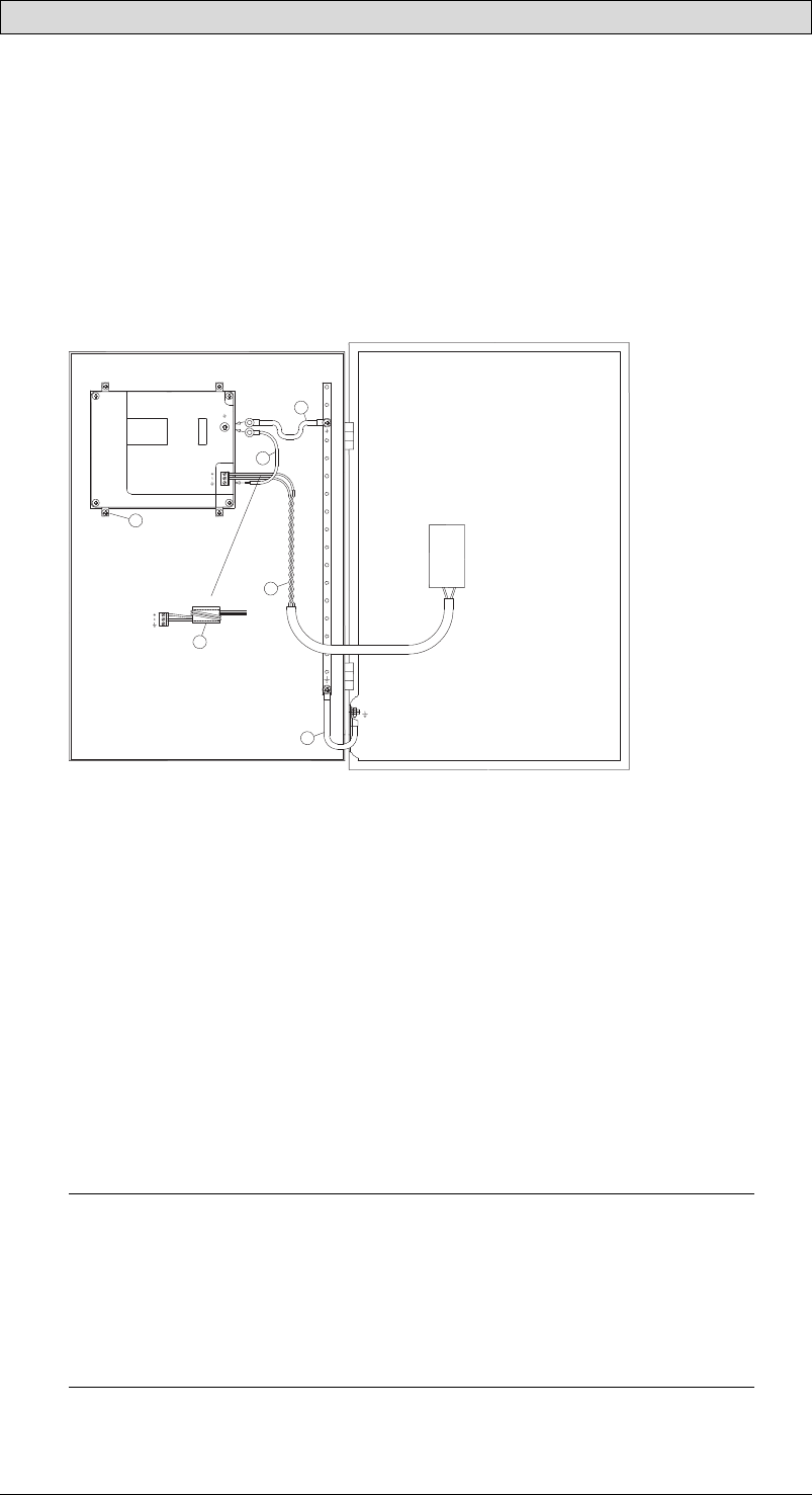
10.1 GroundingtheOperatorPanel
1
2
3
4
5
6
Door
Operator panel
Ferrite core
Mounting plate in the cabinet
Power supply
24 V DC
5350
The operator panel’s mounting clamps do not provide a secure grounding
connection between the panel and t he device cabinet, see 1 in drawing above.
1.
Connect a 2.5 mm
2
wire between the ope
rator panel’s quick-connect plinth
and the panel chassis, see 2 in drawi
ng above.
2.
Connect a 6 or 4 mm
2
wire or grounding braid between the panel’s chassis and
the closest grounding point on the door, see 3 in drawing above.
3.
Connect a strong but short ground ing braid between the door and the device
cabinet,see 4 in drawing above.
4.
Twist the cables onto the 24 V DC feed, see 5 in drawing above.
2 turns around the ferrite core provide 4 times the suppression of 1 turn.
3 turns around the ferrite core provide 9 times the suppression of 1 turn.
A ferrite core suppresses disturbances to the 24 V feed, see 6 in drawing above.
Note:
Thegroundingwiresshouldbeshortandt heconductorshouldhavealargearea.
Along,thingroundingwirehasaveryhighimpedance(resistance)athighfrequencies
andwillnotguidedisturbancestotheground.
Multi-wireconductorsarebetterthansinglewireconductorswiththesamearea.
Abraidedconductorwirewiththesameareaisevenbetter. Thebestisashort,thick
groundingbraid.
BeijerElectronics, MAEN004
31










