Specification
Manuals
Brands
Base'N Bench Manuals
Bath
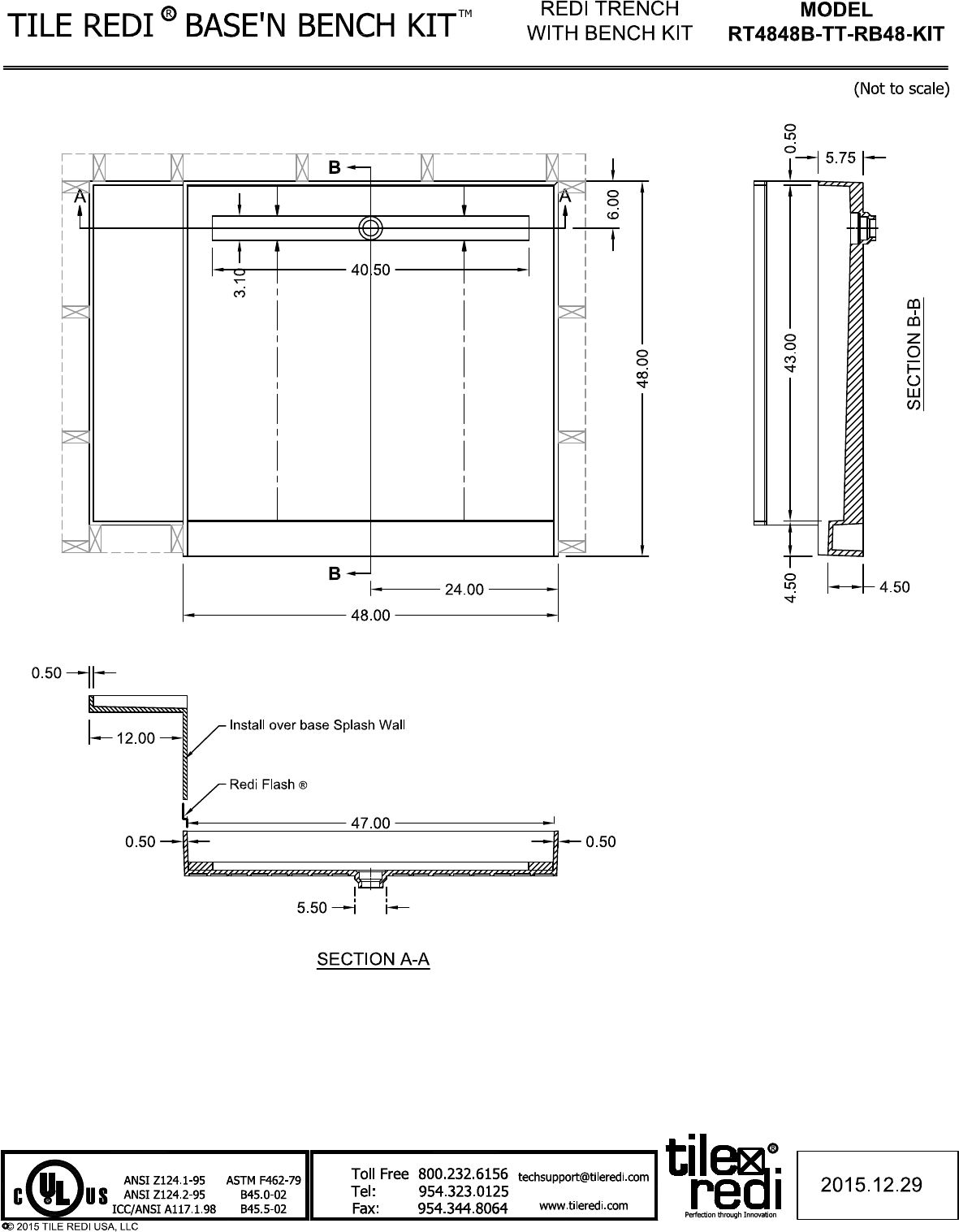
48 in. x 60 in. Single Threshold Shower Base in Gray and Bench Kit with Back Drain and Tileable Trench Grate
1
1
Summary of content (1 pages)
PAGE 1