Installation Guide

QCI0280 Page6 Cerfied6/27/14
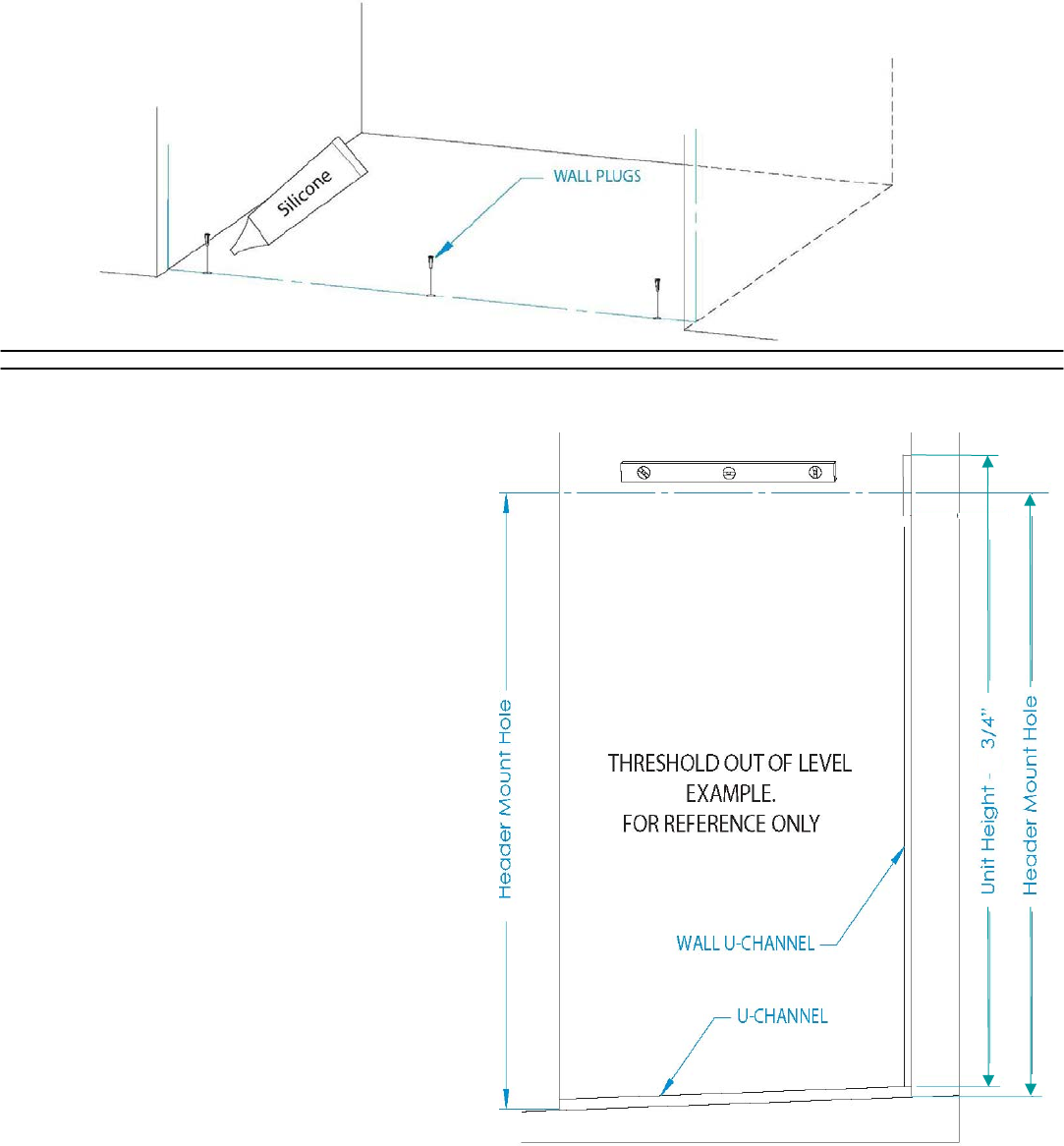
4Verify that the U-channel [3] is cut
properly using the below formulas:
U-channel Height = Unit Height - 3/4”
Or
U-channel Height = Panel Glass Height - 9/16“
Note: If out of level conditions exist be sure
to use the longer U-channel on the appropriate
side (see illustration).
Next, drill three 3/16” diameter holes in the
center of U-channel (centerline groove
provided for convenience); one hole 2-1/2”
from each end and one hole in the middle.
Place the U-channel over the wall centerline
marked in step one. With a pencil, carefully
mark each hole position on the wall centerline.
Drill a 3/16” diameter hole, approximately 1”
deep, directly on the wall centerline at the
marked locations.
3 Insert a small amount of silicon into each drilled hole, then insert a wall anchor into each hole.
(Note: Drill hole, then insert a wall anchor.) This must be done just before u-channel installation.
Carefully cut the heads off the wall anchors with a razor blade. Place the U-Channel in correct posi-
tion and secure it with #8 x 1-1/2” truss head screws.










