Installation Guide

QCI0274 REV. 1 Page 8 Certified 10/01/10
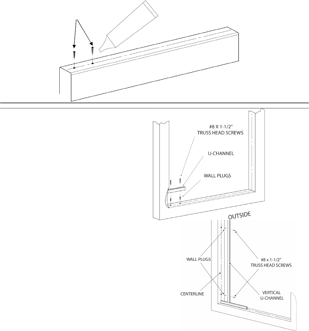
Each piece of u-channel requires a mini-
mum of two (2) screws, 3” from each end
for lengths less than 18”. Lengths 18” or
greater also require screws approximately
every 18”-24”.
Position the horizontal u-channel along the
threshold centerline and the vertical u-
channel along the wall centerline, use low-
tack tape to hold in place. Check that each
piece of u-channel fits in location along the
marked centerlines and joints fit tightly.
Once verified horizontal and vertical u-
channels in correct positions, secure them
with #8 x 1-1/2” truss head screws.
With a pencil, carefully mark each hole position on the threshold centerline. Remove the u-channels
and drill a 3/16” diameter hole, approximately 1-1/2” deep, at the marked locations.
Insert a small amount of silicon into each drilled hole, then insert a wall anchor into each hole.
(Note: Drill hole, then insert a wall anchor.) This must be done just before u-channel installation.
Carefully cut the heads off the wall anchors with a razor blade.
WALL ANCHORS
Threshold / Showerbase
Silicone
Note: Do not over tighten screws.










