Installation Guide

QCI0274 REV. 1 Page 5 Certified 10/01/10
If a continuous unit centerline does not exist from the
original measuring process, it will be necessary to create
one. Referencing the Measuring Guide included with this
unit, lightly mark a continuous unit centerline on the
threshold.
Next, mark a continuous unit centerline up each wall,
starting where the threshold centerline meets the wall.
Use a level to ensure the wall centerline is plumb and
straight. The wall centerlines should be a minimum of the
unit height from the threshold.
Note: Centerline (CL) is a term used to describe the cen-
ter or mid-point of the unit. The position of the unit cen-
terline can be located anywhere in the width of the
threshold, as long as adequate structure exists beneath
the centerline for fastening and the outer edges of the
unit will not overhang the threshold. The most common
unit centerline position is the middle of the threshold.
Note: It is extremely important the unit cen-
terline be continuous and straight to ensure
proper installation.
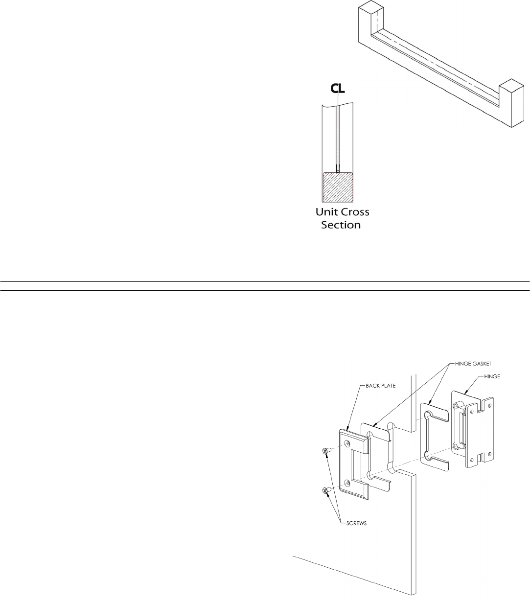
Using alcohol pads, wipe down the hinge notches and
notch gasket areas on the Door Panel Glass. Allow
glass to dry before continuing.
Remove the back plates from both Wall Mount
Hinges. Place a gasket on the Hinge and place the
fixed part of hinge onto the Fixed Panel Glass.
Note: The Hinge with the logo must be the top Hinge.
Next, place another gasket against the glass and at-
tach the back plate with the screw provided. Interior
of hinges must press firmly against top side of notch.
Repeat on both Fixed Panel Glass notches and open
the hinges outward.
NOTE: Your hinges may differ in external shape than what’s
shown. However, installation procedures are the same.










