Installation Guide

Installaon
Cered 4/21/2015
QCI0288
Page 12
SWEEP AND STRIKE-VINYL
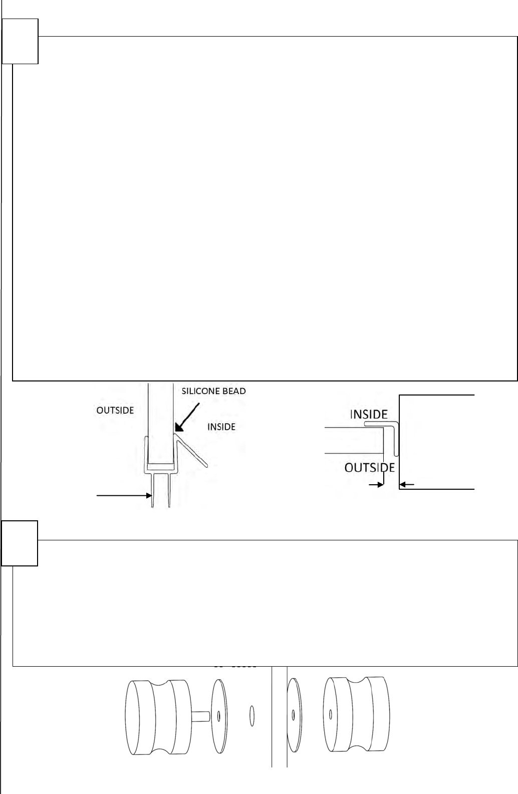
The Sweep (I) and Strike-Vinyl (G) help reduce leakage in your frameless unit and
protect the door from damage. Before installaon, you may be required to cut the
Sweep (I) and Strike-Vinyl (G) to your unit width and height.
To install, clean the wall with an alcohol swab where the vinyl will sit. Find the Strike-
Vinyl (G) and peel o the protecve strip. Adhere the vinyl to the wall where the door
is closed. The vinyl prevents the door from closing too far.
Next, nd the Sweep (I). Slide the piece onto the boom of the Door Glass (F) with
the wing facing inwards as shown in the gure. Adjust the Sweep (I) so that it contacts
the threshold. Depending on how closely the sweep contacts your threshold, you may
also need to trim the sweep legs for a proper t.
To prevent the Sweep (I) from moving and to reduce water leakage into the sweep,
run a bead of silicone on the inside of the door between the sweep and glass.
8
HANDLE
Find the Handle (H) and unscrew the two secons. Insert the Handle Body (FF) and
the Stud (HH) into the hole in the Door Glass (F) and screw the other side of the
handle onto the Stud (HH).
9
WALL
3/16”
Sweep legs










