Dimensions
Manuals
Brands
Basco Manuals
Bathroom Remodel & Bathroom Fixtures
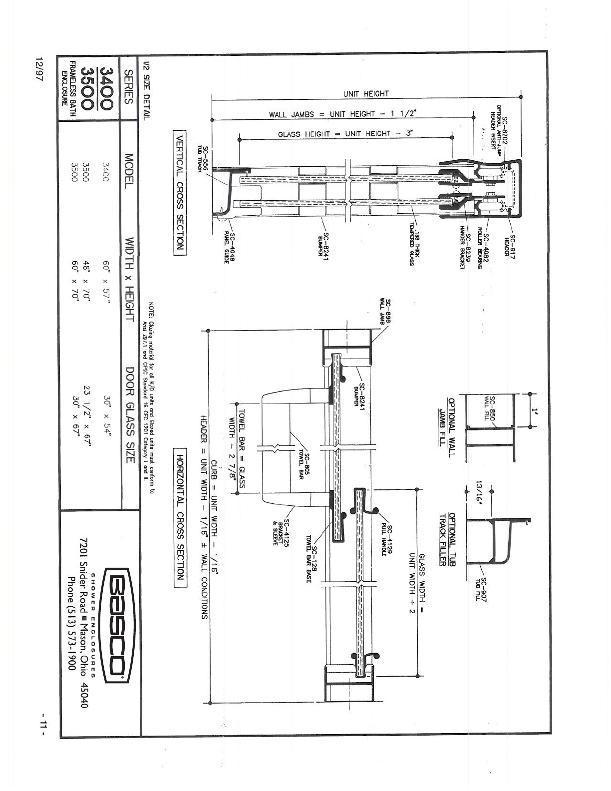
Classic 56" W x 57" H Bypass Frameless Tub Door
1
1
Summary of content (1 pages)
PAGE 1