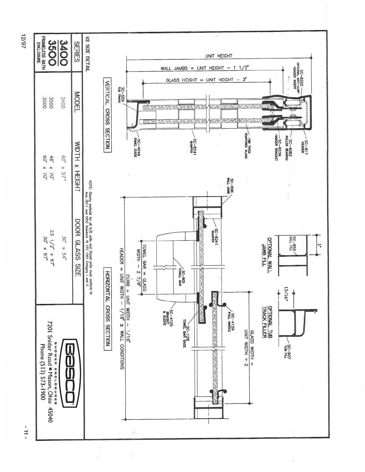
Technical Specifications
Manuals
Brands
Basco Manuals
Bath
Classic 56 in. x 70 in. Semi-Framed Sliding Shower Door in Brushed Nickel
1
1
Summary of content (1 pages)
PAGE 1