Installation Guide

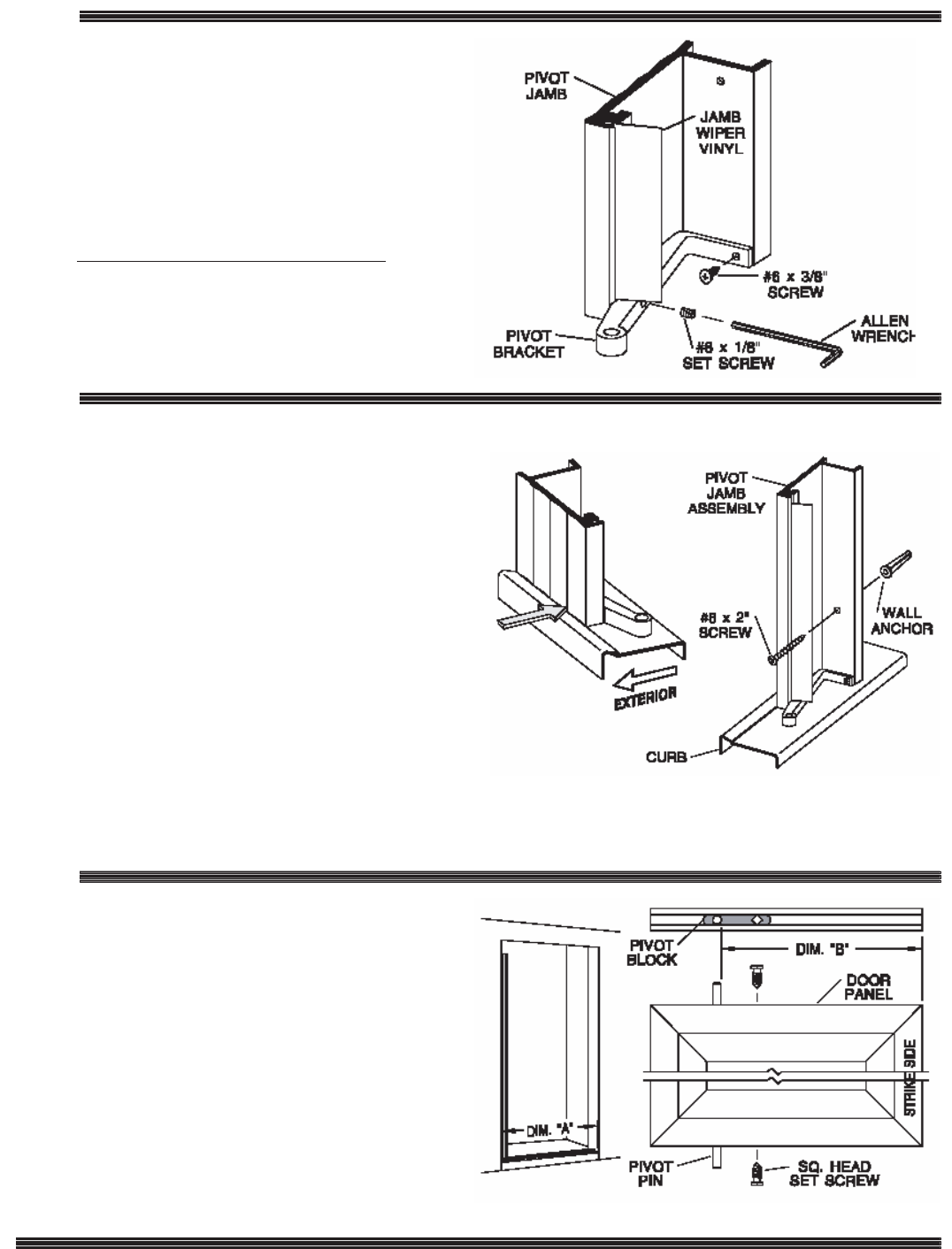
Slide the jamb wiper vinyl [B] into the pivot
jamb [C]. A small amount of soapy water will help
installation. Cut the jamb wiper vinyl 7/8” shorter than
the pivot jamb to allow room for the pivot brackets [D].
Fit one of the pivot brackets into the bottom of the
pivot jamb. Lock it in place with a #6 x 3/8” truss head
screw [E] and a #8-32 x 1/8” set screw [F] (a 5/64”
Allen wrench [G] is provided).
NOTE: Set screws (F) are pre
-installed
Place the pivot jamb [C] on the curb [A] with
the exterior face lined up with the raised edge of the
curb. Use a level to plumb the jamb then mark the
mounting hole locations. Remove the jamb and drill the
mounting holes.
For tile or marble walls, drill three 7/32” diameter holes
and insert the plastic wall anchors [H]. A center hole
punch helps locate the holes accurately. Attachments to
fiberglass or acrylic units can be made in two ways.
If
reinforcement is built into the wall of the unit, drill
three 1/8” diameter holes to install mounting screws
directly into the reinforcement. If walls are not
reinforced, drill 7/32” holes and install plastic wall
anchors or Molly bolts (Molly bolts are not supplied)
Replace the pivot jamb and attach to the wall with three
#8 x 2” truss head screws [J].
Thread the two #10-24 x 7/16” square head set
screws [K] into the tapped holes in pivot blocks in the
top and bottom rails of the glazed door panel [L].
Measure the distance from the wall to wall directly
above the curb (Dim. “A”). Deduct 3 13/16” from this
amount and position the pivot pins this exact distance
(Dim. B”) from the edge of the door. Tighten the set
screws just enough to prevent the pivot blocks from
moving (finger tight plus
a quarter turn). A 3/16”
wrench (not supplied) will fit the set screw heads.
4
5
6
QCI5001 Rev 0 Page 5 Certified 06/21/2016