Specifications Sheet
1LES92R.dft
F.lli Barazza S.r.l.
!!
Mazzer Alberto 27/06/2013
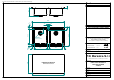
LAVELLO EASY IBR 86X50 2V
EASY SINK LEB 86X50
2 BOWLS
1:10
Elettrodomestici e lavelli per cucine
PER ACCETTAZIONE , FIRMA E TIMBRO
"#$#"$!
%&
'()*
'()+,
-
.
"
//0
-
Mazzer Luigino
1LES92R
1
'
0 &//
-
.230!456375)+*4 /-8093#3:7;)67<=+<<<3">:7;)67<=6;)53"?@@
/%& .A.1
&01%&
SCARICO 3" ½
3.5" BASKET
STRAINER WASTE
480
840
FORO PER TOP INCASSO
BUILT IN CUTOUT FOR TOP
340 70 340
119
400
35 35
R
1
5
5050
55 55
500
860
R
6
75
215
3

