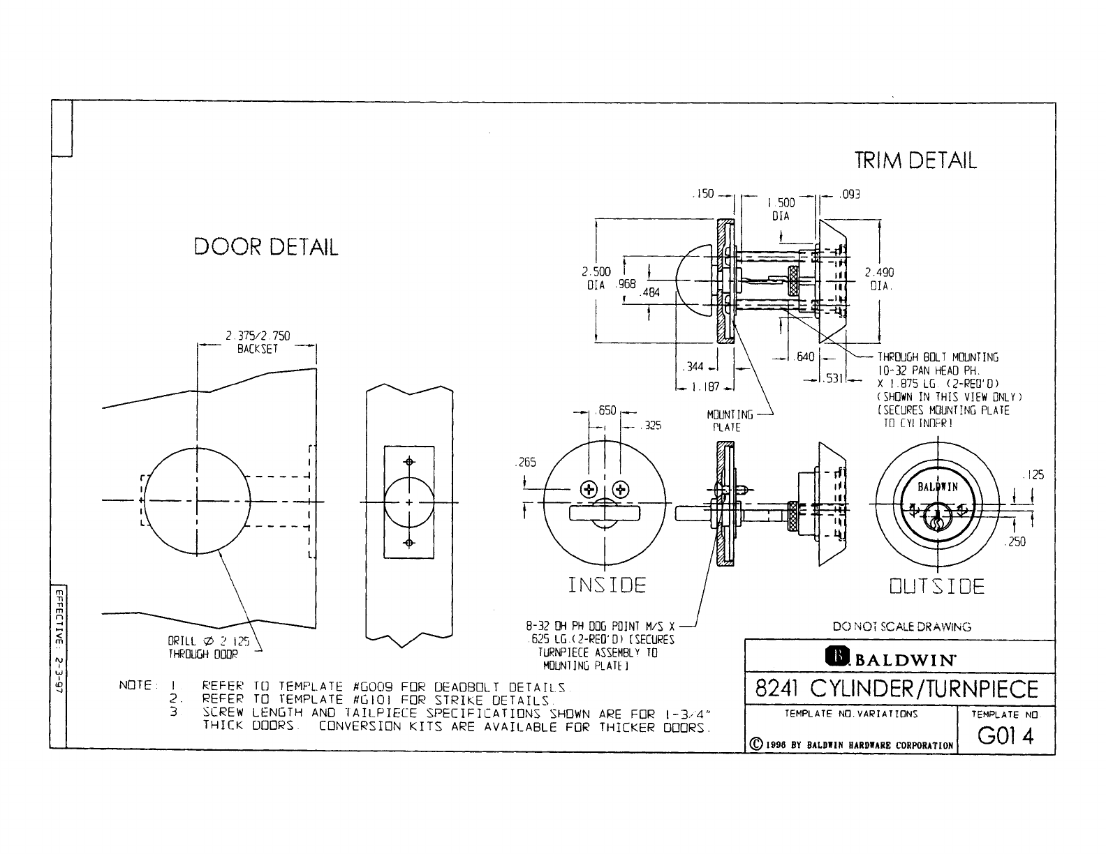
£B-E~2 BAILIFF T Rim DETAIL | 093 oia DOOR DETAIL 2.500 t i 2.490 gl 9‘55 a8 nis ] 22 BALK SET ™ [ THROUGH BOLT MOUNTING 10-37 PAN HEAD PH. X LETS LG (2RO {SHOWN IN THIS VIEW ONLY) ] [SECURES MOUNTING PLATE bra mi L35 T YL INERT @ " BALDWIN Uit A il 250 e INSIDE OUTSIDE RILL @ 2125 THROUGH OUR §-32 TH PH DOG POINT WS X 625 0} (SECURES TURN PIECE ASSEMBLY 10 MOUNTING PLATE ) I REFER T(] TEMPLATE ACIDOSIS FOR DEADBOLT DETAILS 2.