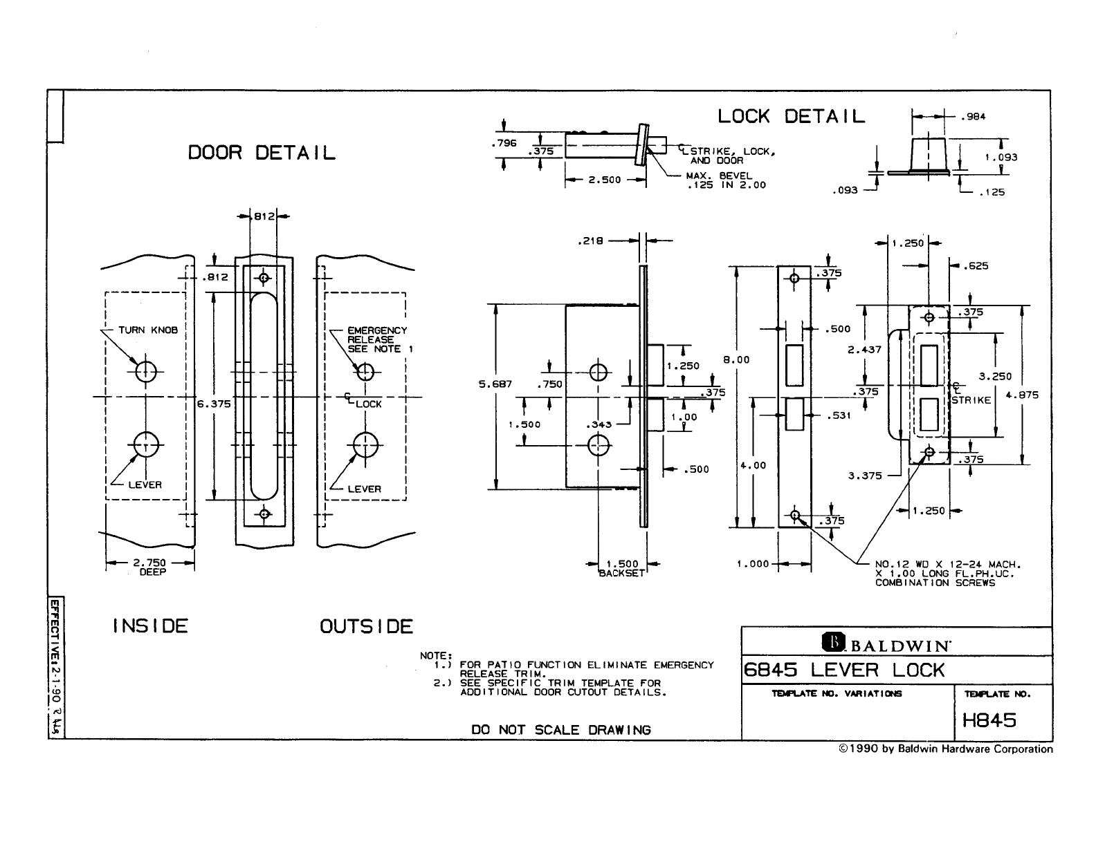
v s 0612 VAT 158443 DOOR DETAIL 2,500 218 —wd T-v ' LOCK DETAIL LT T STRIKE, LOCK, ANG DOOR MAX. BEVEL V125 iN 2090 083 L verso INSIDE OUTSIDE 2375 7 % 1,250 fow] L 625 ¢+ 500 2,457 66 (.00 P 531 1,500 7 —o T 375 4.00 | 500 5,375 1 1.250 f ¢§ 1375 ¥ 1,500 1.000 NO,12 WO X 12-24 MAG, SETBACK X §,00 LONG FL,PH,UC. COMBINATION SCREWS o. BALDWIN NOTE: IN $.3 FOR PATIO FUNCTION ELIMINATE EMERGENCY RELEASE TRIM. 2.} $EE SPECIFIC TRIM TEMPLATE FOR ADDITIONAL BOAR CUTOUT RETAILS.