Tech Drawing
Manuals
Brands
Baldwin Manuals
Mortise Locks
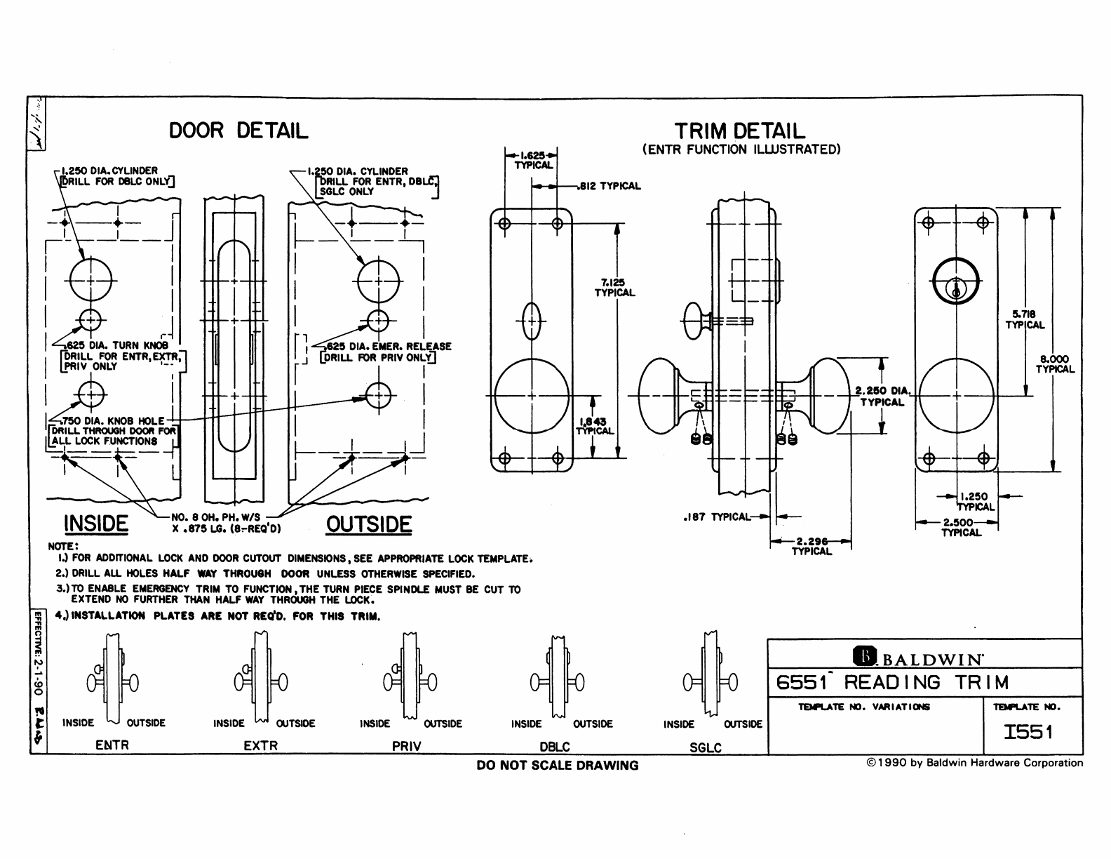
Baldwin Reading Double Cylinder Mortise Handleset Trim Set
1
1
Summary of content (1 pages)
PAGE 1