Electric Company Portable Generator User Manual
Manuals
Brands
Baldor Manuals
Portable Generator
Baldor Electric Company Portable Generator AE8
65
66
67
68
69
70
71
72
73
74
D-6 Series AE25
MN2415
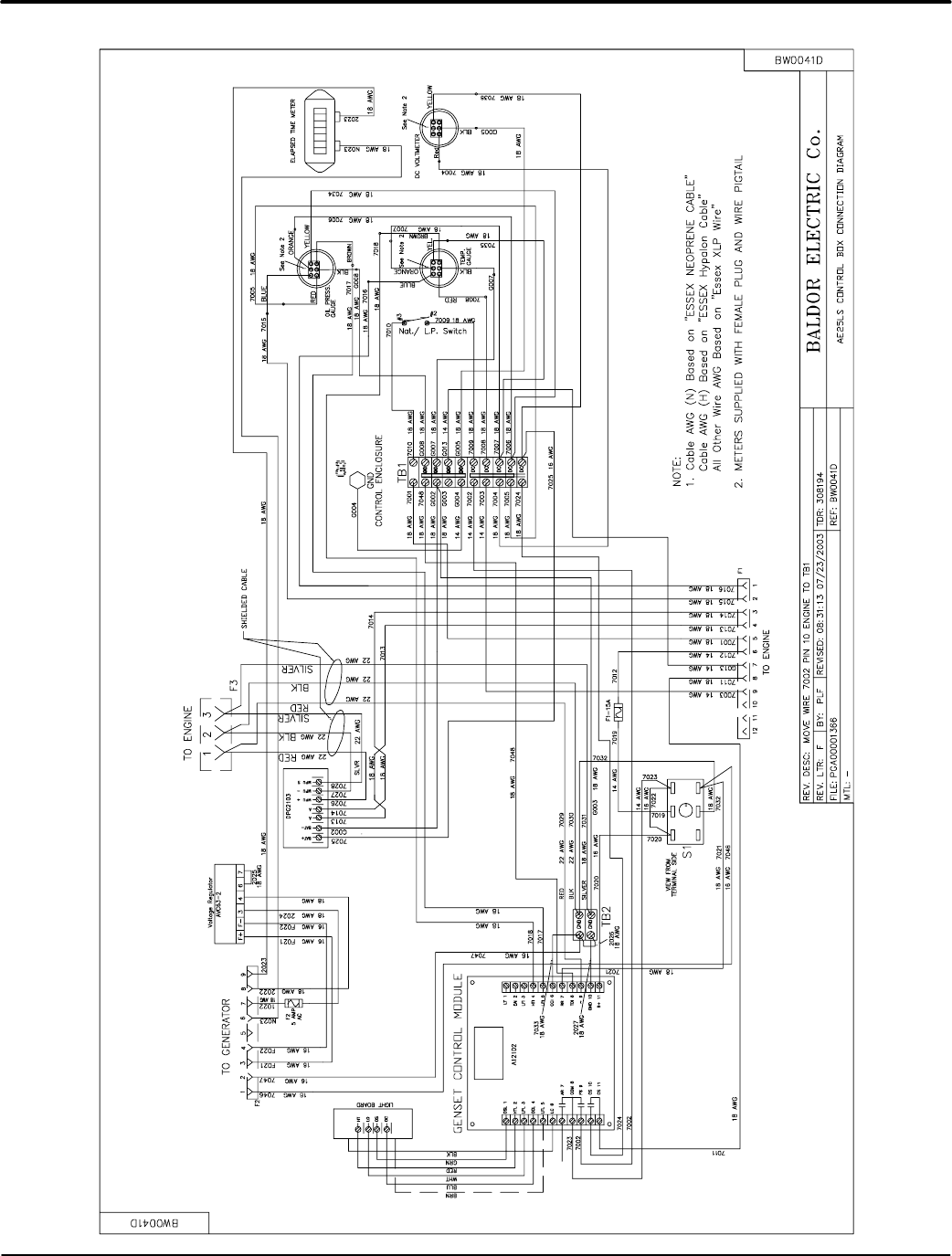
Figure D-6 AE25 Control Box Connection Diagram
1
...
...
70
71
72
73
74