Electric Company Portable Generator User Manual
Manuals
Brands
Baldor Manuals
Portable Generator
Baldor Electric Company Portable Generator AE8
65
66
67
68
69
70
71
72
73
74
Series AE25 D-5
MN2415
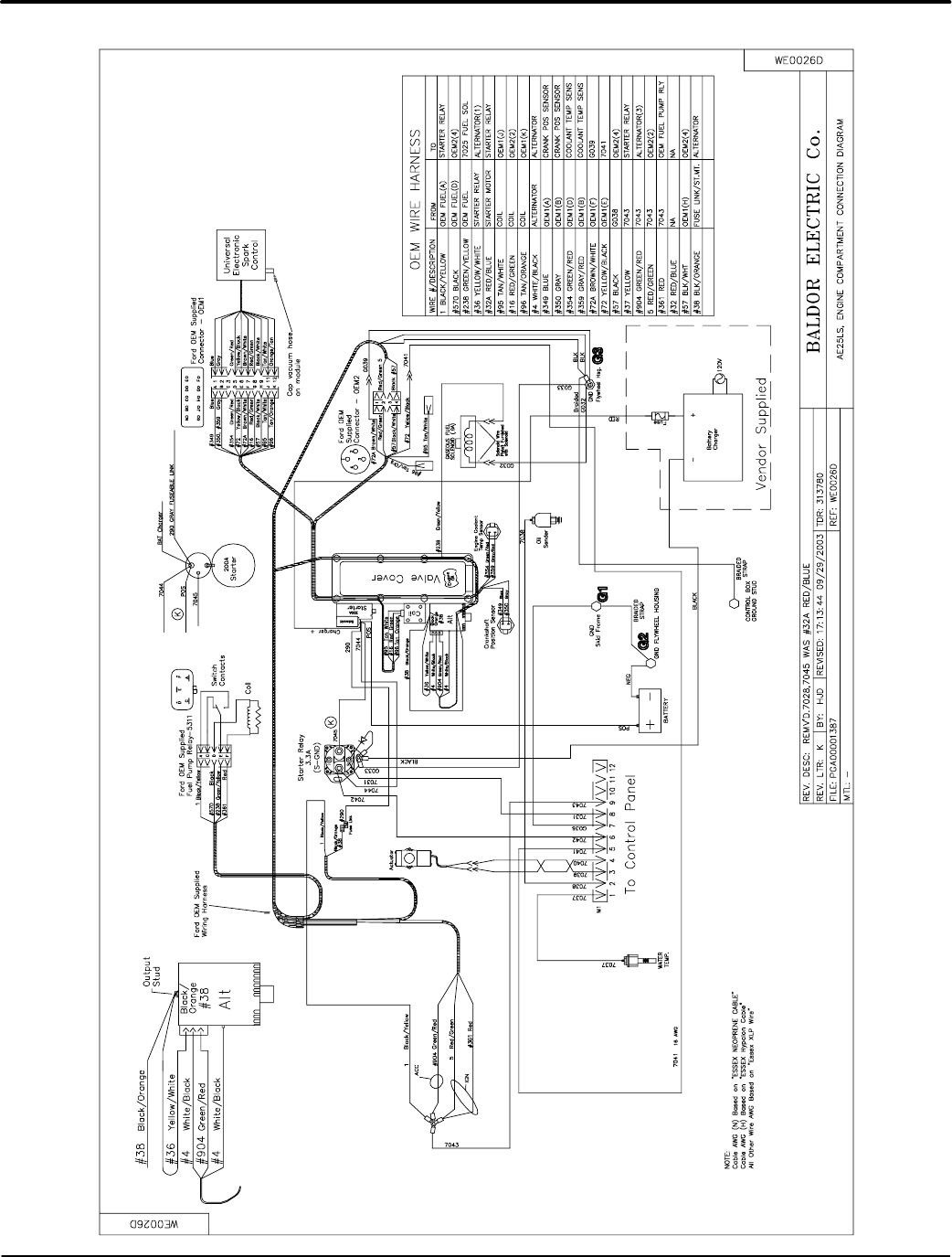
Figure D-5 AE25 Engine Compartment Connection Diagram
1
...
...
69
70
71
72
73
...
74