Electric Company Portable Generator User Manual
Manuals
Brands
Baldor Manuals
Portable Generator
Baldor Electric Company Portable Generator AE8
61
62
63
64
65
66
67
68
69
70
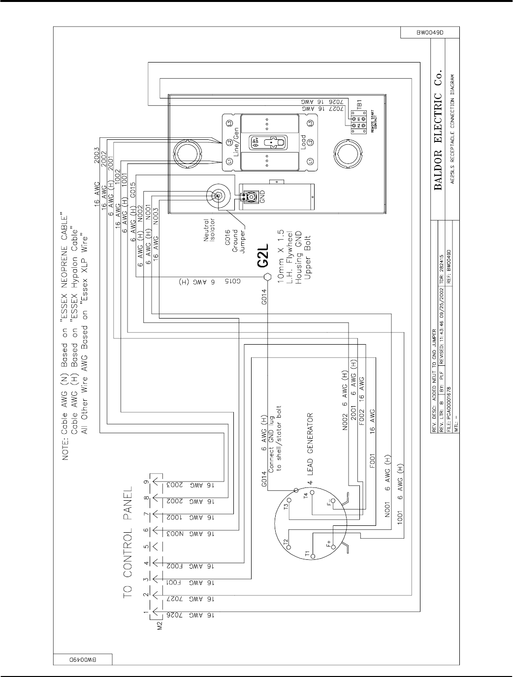
D-4 Series AE25
MN2415
Figure D-4 AE25 Receptacle Connection Diagram
1
...
...
68
69
70
71
72
73
...
74