Electric Company Portable Generator User Manual

D-2 Series AE25 MN2415
Replacement Parts
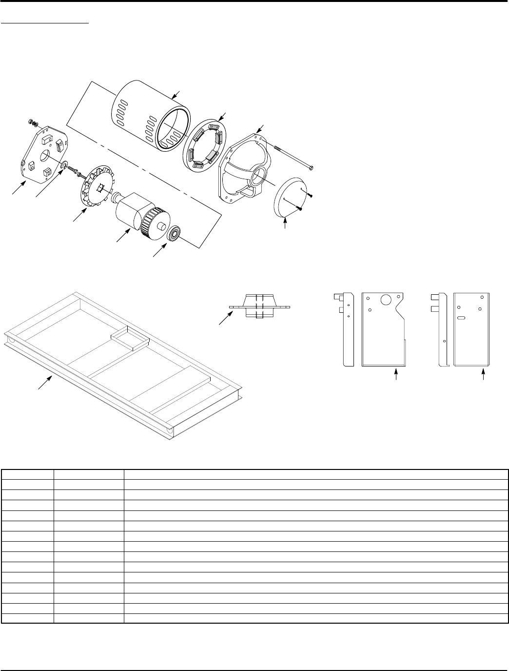
Replacement parts assembly views for the Generator set are shown in Figure D-2 and D-3.
Parts information is provided in Table D-1. Engine parts are identified in the engine manual that
was provided with your generator set.
Figure D-2 Alternator Assembly
1
2
3
5
7
6
4
8
9
Figure D-3 Frame Assembly
20
RM1088A11 (TS25−Green)
RM1088A12 (TS45−Red)
RM1088A13 (TS80−White)
RM1088A25 (TS45−Green)
15
HB6072A04
HB6072A05
21 22
Table D-1 Generator Set Parts List
Ref No. Part No. Description
1 HB6179A00 Adaptor, Engine
2 62FN2000A02 Fan
3 62RA0025A00 Rotor Assembly
4 BG6207H03 Rotor Bearing
5 62SA0017A00 Stator Assembly
6 62EX5002A04 Exciter Assembly
7 62EP3200A02 Bearing Bracket
8 HB7023A00 Rotor End Plate
9 HA2444A02 Rotor Bolt (Rotor to Engine)
Not Shown EM0027A01 Voltage Regulator, AVC63−2.0
15 RM1088A11 Isolator
20 BA0232A03 Base Frame
21 HB6072A04 Engine Mounting Foot, Right
22 HB6072A05 Engine Mounting Foot, Left










