
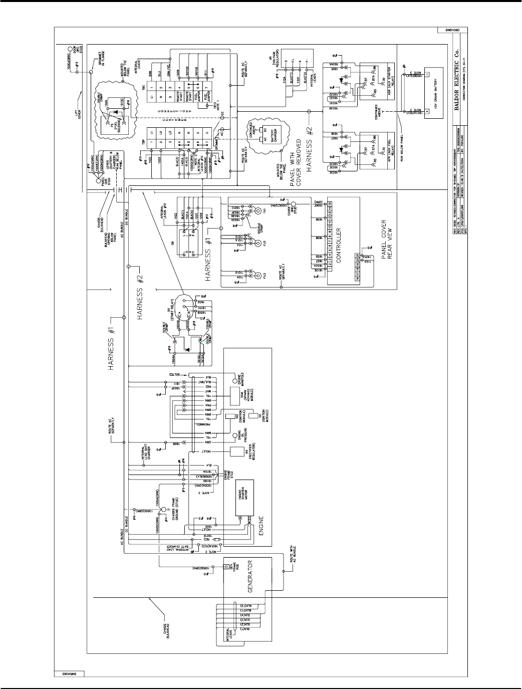
C-8 Series AE11 MN2415
Figure C-10 AE11 Connection Diagram
Notes:
1. Remove jumper if LP fuel is used.
2. Remove bullet connector from BLK/WHT wire.
Substitute WD1000F23.
3. No Bonding wire.
4. (GRN) wires have green colored insulation.
(Red) wires have Red colored insulation.