Electric Company Portable Generator User Manual
Manuals
Brands
Baldor Manuals
Portable Generator
Baldor Electric Company Portable Generator AE8
61
62
63
64
65
66
67
68
69
70
C-6 Series AE1
1
MN2415
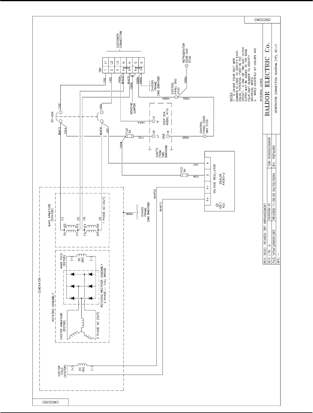
Figure C-8 AE1
1 Generator Connection Diagram
1
...
...
60
61
62
63
64
...
...
74