Electric Company Portable Generator User Manual
Manuals
Brands
Baldor Manuals
Portable Generator
Baldor Electric Company Portable Generator AE8
51
52
53
54
55
56
57
58
59
60
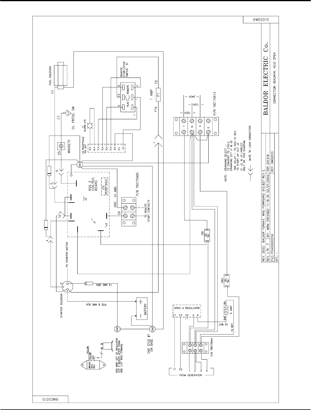
Series AE10 B-5
MN2415
Figure B-5 AE10 Open Frame Wiring Diagram
1
...
...
53
54
55
56
57
...
...
74