Electric Company Portable Generator User Manual
Manuals
Brands
Baldor Manuals
Portable Generator
Baldor Electric Company Portable Generator AE8
41
42
43
44
45
46
47
48
49
50
A-6 Series AE8
MN2415
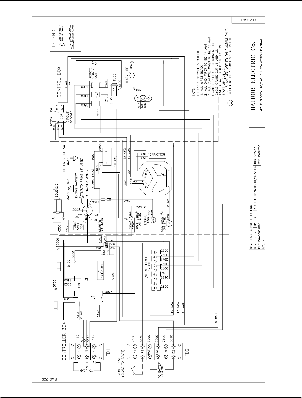
Figure A-6 AE8 Enclosed Wiring Diagram
1
...
...
48
49
50
51
52
...
...
74