Electric Company Portable Generator User Manual
Manuals
Brands
Baldor Manuals
Portable Generator
Baldor Electric Company Portable Generator AE8
41
42
43
44
45
46
47
48
49
50
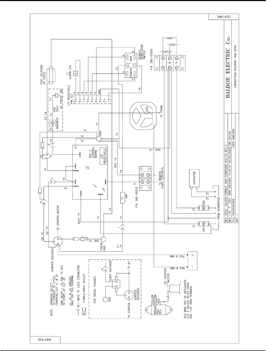
Series AE8 A-5
MN2415
Figure A-5 AE8 Open Frame Wiring Diagram
1
...
...
47
48
49
50
51
...
...
74