Electric Company Portable Generator User Manual

Section 3
Receiving & Installation
Receiving & Installation 3-1MN2415
Receiving & Inspection When you receive your generator, there are several things you should do immediately.
1. Observe the condition of the shipping container and report any damage immediately to
the commercial carrier that delivered your system.
2. Verify that the part number of the system you received is the same as the part number
listed on your purchase order.
3. If the system is to be stored for several weeks before use, be sure that it is stored in a
location that conforms to published storage temperature and humidity specifications.
Lifting the Generator When lift or hoist equipment is used to lift the generator and move it to position, be careful not
to contact overhead wires or other obstacles. The generator can weigh as much as 1,500 lbs. Be
sure lift or hoist equipment has appropriate tires for the terrain to avoid becoming stuck or tipping
over. If the shipping pallet is intact, use a fork lift to move the generator. If the shipping pallet has
been removed, use two steel pipes through the “Lift Point” holes to lift the generator. See Figure 3-1.
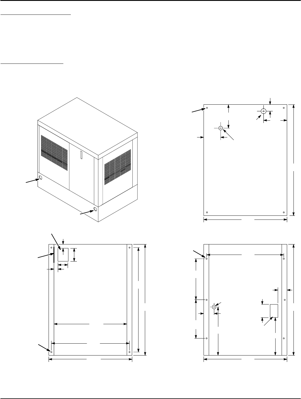
Figure 3-1 Generator Lifting & Mounting
Lift Point
Lift Point
Height
Width
Length
AE8 & AE10
29.00
44.50
2.63
8.88
All dimensions are in inches.
8.88
7.75
Electrical
Stub Up
Fuel Inlet on
Horizontal Surface
(Alternator End)
AE11
Four mounting
holes 0.38" dia.
30.29
46.00
4.52
(Alternator End)
AE25
31.25
72.00
3.19
Electrical
Stub Up
Fuel Inlet
Zone
(Alternator End)
29.29
42.00
6.00
1.50
Thru Base
Stub Up Area
1.50
Stub Up
Access Panel
(Fuel & Electrical)
28.00
LT0143A30
LT0143A02
Six mounting
holes 0.410" dia.
Four mounting
holes 0.38" dia.
30.00
24.00
24.00
26.14
Not To Scale
3.19
20.94
8.12










