Installation Guide

14
How to Install an Overlay Panel
Only for Model Numbers:
A115WC-O; A124WC-O; A115BEV-O; A124BEV-O; A115R-O; A124R-O
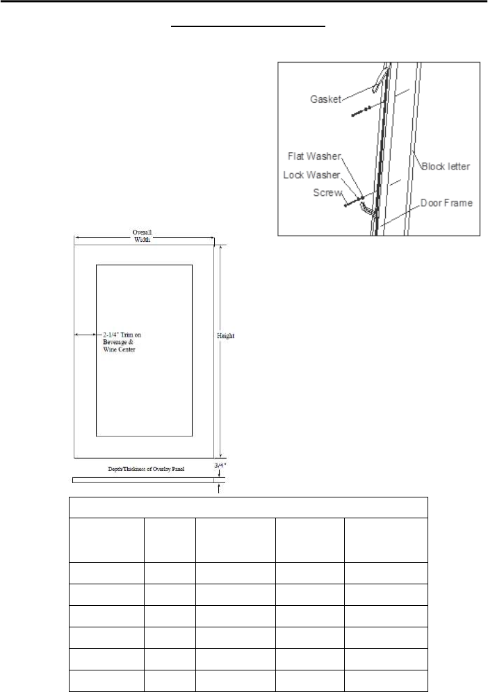
1. Remove the door gasket from the interior of the door.
2. The screws that come with the unit are intended to be
used with a ¾” front panel.
3. Clamp your front panels to the frame of the door and
then anchor the panel to the door, using the screw, lock
washer and flat washer provided for each mounting hole.
4.
Re-install the gasket into the door assembly.
Dimensions for Overlay Panels
Model Height
Total Width
of Door
Width of
Trim
Depth /
Thickness of
Trim
A115WC-O 23-3/8” 14-1/2” 2-1/4" 3/4"
A124WC-O 28-1/8” 23-1/8” 2-1/4" 3/4"
A115BEV-O 23-3/8” 14-1/2” 2-1/4" 3/4"
A124BEV-O 28-1/8” 23-1/8” 2-1/4" 3/4"
A115R-O 23-3/8” 14-1/2” N/A 3/4"
A124R-O 28-1/8” 23-1/8” N/A 3/4"

