Manual
Table Of Contents
- Use & Care Manual
- Refrigerators Beverage Centers Wine Centers
- Table of Contents
- Page
- For your safety, read all instructions carefully before operating the appliance.
- DANGER: When using an electrical appliance, basic precautions should always be followed to reduce the risk of fire, electric shock, and injury to persons.
- Locate the unit away from direct sunlight and sources of heat (stove, heater, radiator, etc.).
- Save These Instructions
- Disposal of Old Appliance
- Dispose of your appliance packaging properly.
- Refrigeration equipment must be properly disposed of in a way which protects the environment. This applies to your old appliance and to your new unit once it has reached the end of its service life.
- Limited Warranty
- Limited Warranty (continued)
- IMPROPER USE: Azure assumes no liability for component failure or other damages resulting from improper usage or installation or failure to clean and/or maintain the product as set forth in the warranty packet provided with the product. This limited w...
- Installation Instructions
- Before Using Your Azure Appliance
- Installation of Your Appliance
- Installation Instructions (continued)
- Built-in Cabinet Instructions
- Installation Instructions (continued)
- Attention
- Check that the voltage marked on the product corresponds with your supply voltage.
- This appliance requires a standard 115/120 Volt AC~60Hz electrical ground outlet with three pins. Have the wall outlet and circuit checked by a qualified electrician to make sure the outlet is properly grounded. When a standard two-pin wall outlet is ...
- To prevent accidental injury, the cord should be secured behind the appliance and not left exposed or dangling.
- Installation Instructions (continued)
- Note: All parts removed must be saved to do the reinstallation of door
- How to Install and Adjust the Bottom Vent
- How to Install an Overlay Panel
- Setting a Temperature
- Setting the Temperature Control for your Wine Center
- Model Numbers: A115WC-S; A115WC-O; A124WC-S; A124WC-O
- Setting the Temperature Control for your Beverage Center and Refrigerator
- Model Numbers: A115BEV-S; A115BEV-O; A115R-S; A115R-O; A124BEV-S; A124BEV-O; A124R-S; A124R-O
- Key Lock
- Shelves
- Defrosting
- Storage
- Many bottles may differ in size and dimensions. As such the actual number of bottles you may be able to store may vary.
- Care and Maintenance
- Cleaning Your Azure Appliance
- Power Failure
- Vacation Time
- Moving Your Wine Center
- Energy Saving Tips
- Troubleshooting Guide
- Parts Listing
- A115WC-O
- Parts Listing
- Parts Listing
- Parts Listing
- Parts Listing
- Parts Listing
- Parts Listing
- Parts Listing

12
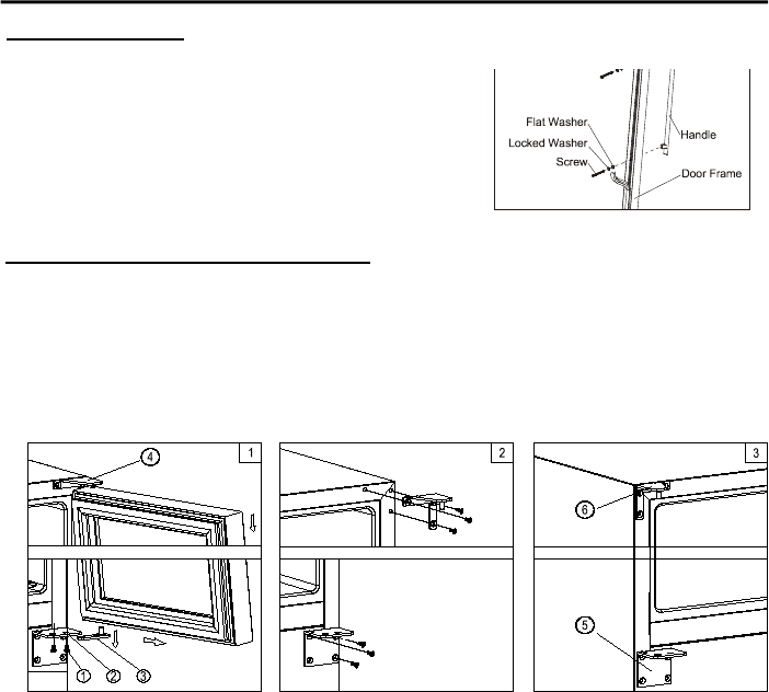
Installation Instructions (continued)
Installing the Handle
1. Remove the door gasket on the side you wish to install the
handle. Under the gasket you will see two designated
holes for handle installation
2. Install the handle tightly as shown above with two screws,
lock washers and flat washers provided.
3. Replace the door gasket.
Reversing the door swing of your appliance
Should you desire to reverse the opening direction of the door, please follow the instructions below:
Note: All parts removed must be saved to do the reinstallation of door
1. Lock screws
2. Right lower hinge
3. Door shaft assembly
4. Right top hinge
5. Glass door
6. Cabinet
7. Left top hinge
8. Left lower door hinge
1. Open the glass door and remove the two lock screws (#1) under the right bottom corner of the door, that are
used to hold the right lower hinge (#2) to the door shaft assembly (#3). Be careful to support the door with
both hands to prevent it dropping after removing the screws.
2. Pull out and down to remove the door and place it on a padded surface to prevent scratching it.
3. Now, remove the right top hinge (#4) and right lower hinge (#2) completely. Once the brackets are removed,
reinsert the lock screws (#1) to secure the bottom vent in place.
a) When you remove the lower right hinge, the ventilation grid will be free/loose on the right side
until you put the bolts back in place.
4. Take the left top hinge (#7) and left lower hinge (#8) from the plastic bag that is included with the
instruction manual and install them in the designated positions on the left side of cabinet.
a) Pull out the plastic plugs that in place of the bolt holes and re-insert them where you removed the
bolts for the top right bracket, to fill the holes left from removing the bracket
b) When you remove the lower left hinge, the ventilation grid will be free/loose on the left side until
you put the bolts back in place.
5. Turn the glass door around 180º and then relocate the door to the designated position.
6. Next, re-attach the door to the bottom bracket with the two lock screws (#1) removed in step 1 and then
tighten the bolts after the door is leveled.










