Instruction manual

Mounting Front Guide Bar
1.Mounting the Front Guide Bar A
(Figure12) to the front of the saw
Table B (Figure12).
2.See the Rip Fence Alignment
instructions. This will address the
mounting of rail and Rip fence.
Rip Fence Alignment
Burning on the waste side of stock and/or the workpiece binding between the rip fence
and the back of the saw, are both indicative of the rip fence being out of square to the
blade. Check by placing a piece of 3/4”stock at the front and another piece at the rear
of the near side of the sawblade. Slide the rip fence up against these to determine
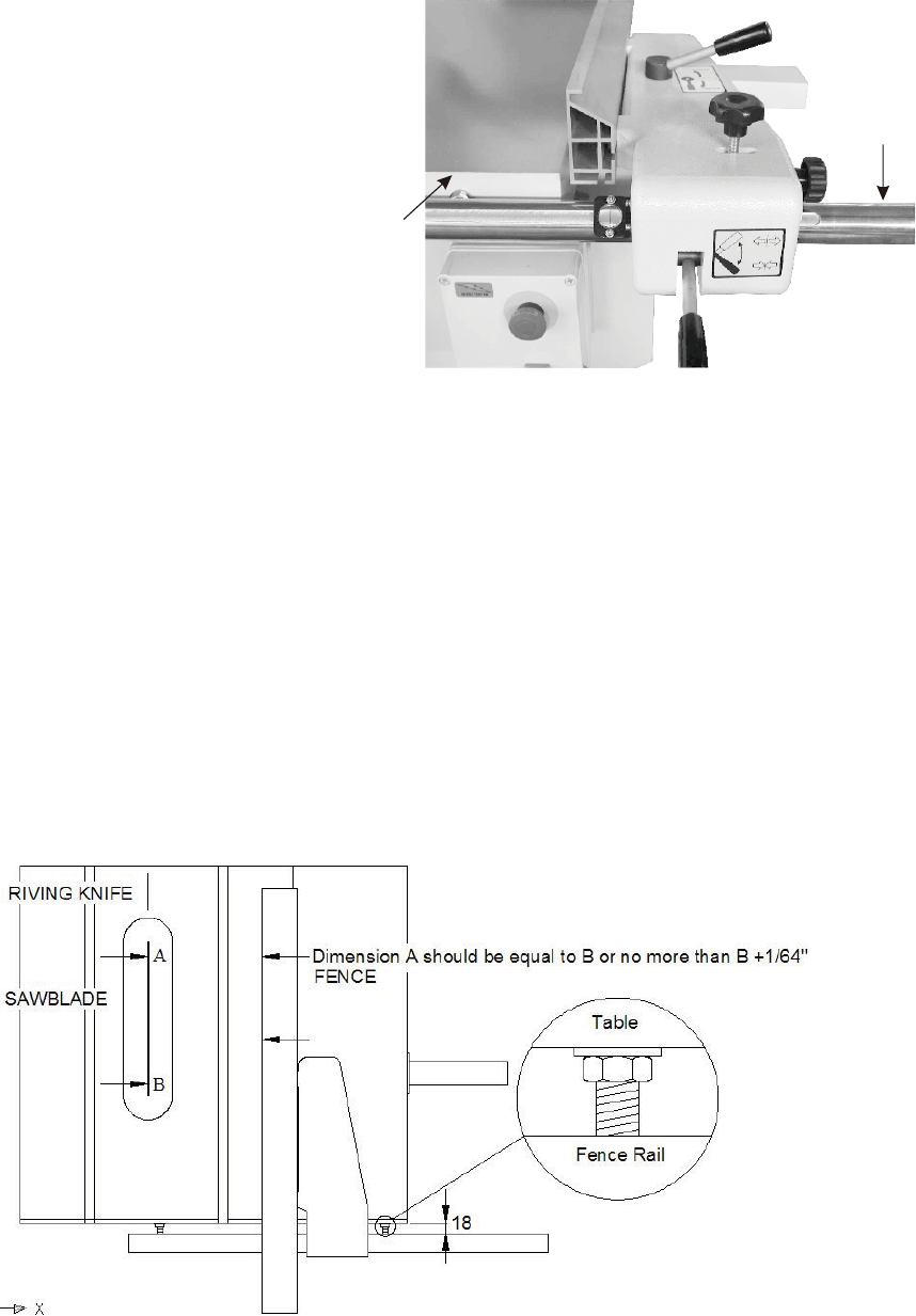
alignment. If necessary adjust the fence using the locking bolts at the back of the fence
rail. So as to prevent the fence casting catching on the fixing studs a distance of 18mm
from the fence bar to the table is required.
To reduce the potential for kickback set the rip fence so that it is slightly farther (about
1/64 in.) from the back of the blade than from the front, so that the rear teeth just miss
the stock being cut.
When adjusting the position fore and aft of the rip fence set the extrusion so that it sits
slightly above the table when clamped up against the fence casting. This will ensure
that the nylon roller underneath the casting remains in contact with the table.
Alternatively the rip fence extrusion may have been bent. Check by placing a straight
edge along its length. Either replace it, or add an auxiliary wood fence and shim it to
even out any imperfections.
B
A
Figure 12
- 19 -










