Manual
Manuals
Brands
Axis Manuals
Commercial Equipment
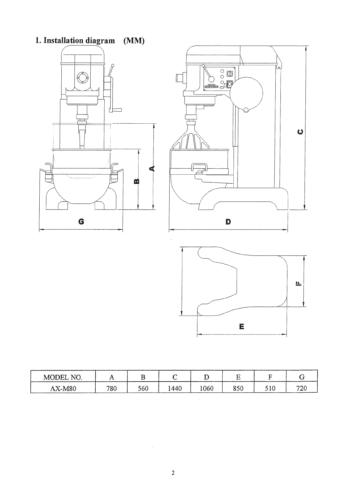
AX-M80 Commercial Mixer with Capacity of 80 Quarts, 4 Speeds, Digital Timer, in Stainless Steel
1
2
3
4
5
6
7
1
2
3
4
5
6
...
7