Use and Care Guide

5
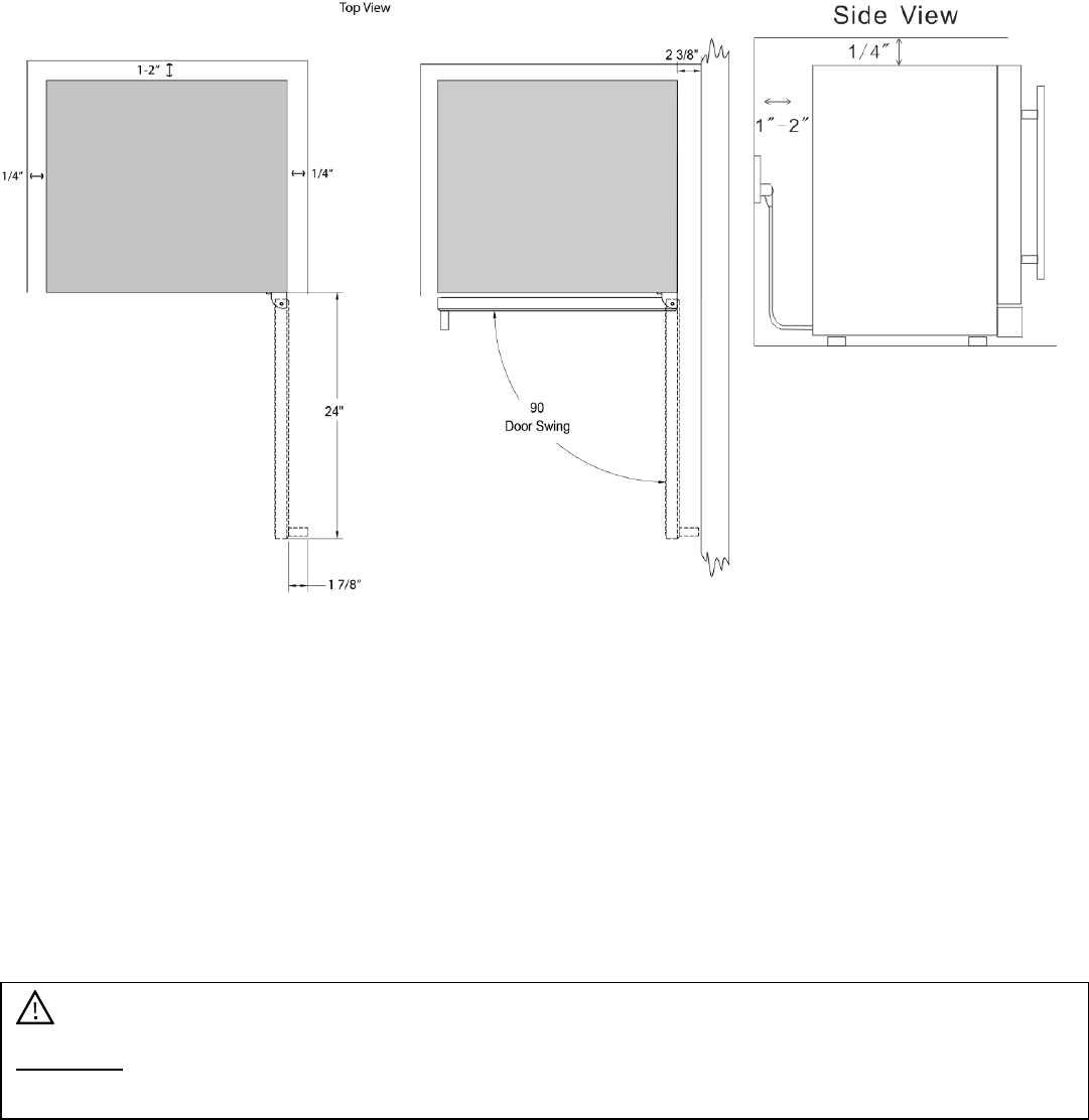
Installation Clearance Requirements:
When installing the wine and beverage refrigerator under a counter, follow the recommended spacing dimensions
shown.
• To ensure proper service access and ventilation, allow between 1 - 2 inches of clearance at the back as
shown in the diagram.
• The installation should allow the unit to be pulled forward for servicing, if necessary.
• A standard electrical supply (115 VAC only, 60 Hz), properly grounded in accordance with National
Electrical Code and local codes and ordinances, is required.
LEVELING:
The wine and beverage refrigerator should be installed on a firm and level surface that will be able to
support the entire weight of a fully loaded unit. It is important for the wine and beverage refrigerator to be
leveled in order to work properly. It can be raised or lowered by rotating the plastic sheaths around each of
the feet on the bottom of the machine. If you find that the surface is not level, rotate the feet until the wine
and beverage refrigerator becomes level. You may need to make several adjustments to level it. We
recommend using a carpenter’s level to check the machine. Turn the leveling feet clockwise to lower that
side of the refrigerator. Turn the leveling feet counterclockwise to raise that side of the refrigerator.
Important: Once you are ready to install the unit in a cabinet or directly on the floor, you must adjust the
feet to level the wine and beverage refrigerator.